Terug naar nieuwbouwproject

2-1 kap woning 10

€ 445.000,-

Omschrijving

MULTIFUNCTIONELE WONINGEN
De multifunctionele woningen hebben een sfeervolle leefruimte en een slaap- en badkamer op de begane grond.
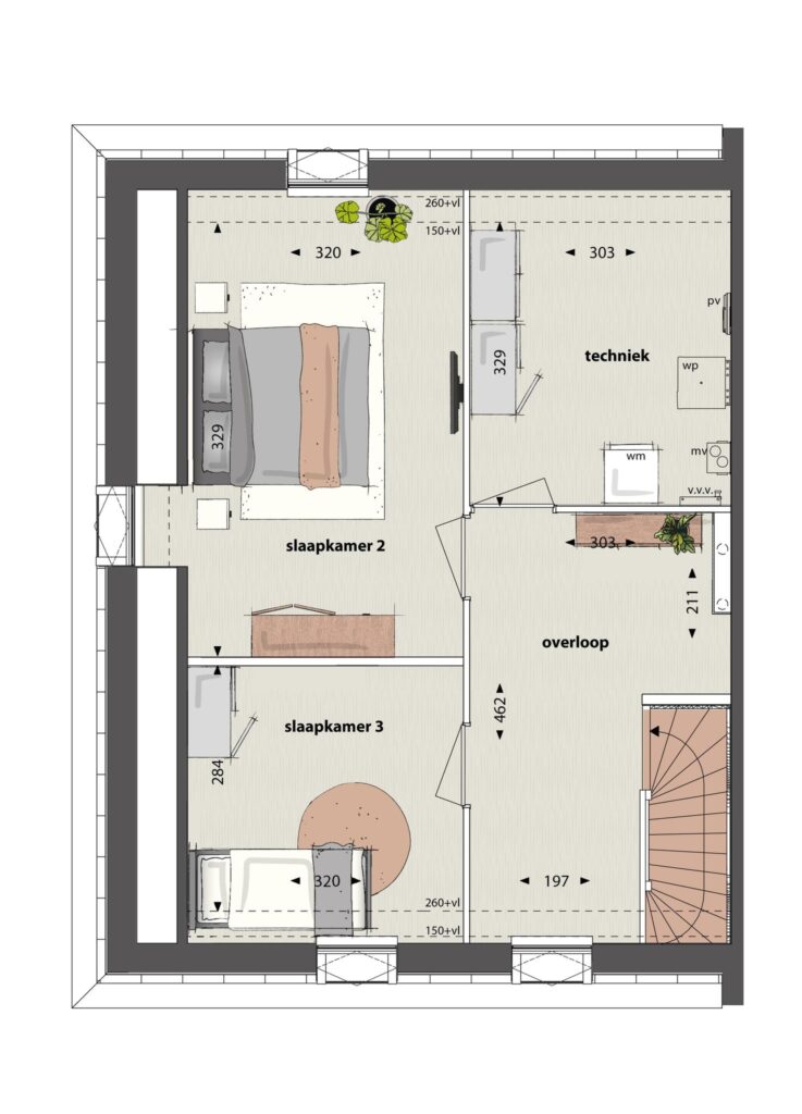
Boven zijn nog eens twee slaapkamers en een techniekruimte.

Wil je de woning anders indelen? Dan kan dat.
Leuk detail is de overkapping bij het raam aan de voorkant. Wanneer je hier zit, geniet je volop van het groen.

Bijzonderheden bouwnummer 10:
– 2-1 Kapwoning op een kavel van 167 m2;
– Hierbij komt 1/16e deel ( circa 63 m2) mandelig eigendom in de gezamenlijke binnenterrein/parkeervoorziening;
– Parkeerplaats nummer 8 op situatietekening;
– Woning met 118 m2 woonoppervlakte;
– Badkamer en slaapkamer op de begane grond;
– Overloop met 2 slaapkamers en een technische ruimte/berging op de 1e verdieping;
– Lucht warmtepomp, vloerverwarming en zonnepanelen aanwezig;
– Volledig geïsoleerd, voorzien van energielabel A(+++);
– Voorzien van luxe tegelwerk en luxe sanitair;
– Privé parkeerplaats en berging;
– Voldoet aan BENG-eisen;
– Er wordt gebouwd met Woningborg garantie.

Volledige omschrijving weergeven

Kenmerken

Koopaanneemsom
€ 445.000,-
Gebruikersoppervlakte
Gebruiksoppervlakte woonfunctie
118 m2
Slaapkamers
Aantal slaapkamers
3
Verwarming
Vloerverwarming geheel, Warmtepomp
Isolatie
Volledig geïsoleerd
Start verkoop
Transactie datum
1 mei 2024
Startdatum Bouw
Bouwjaar
2024
Soort
Soort
Eengezinswoning
Type
Objecttype
Woonhuis

Plattegrond