Omschrijving
Aan de rand van de gezellige stad Ommen, in het prachtige buitengebied Arriën, bevindt zich deze karakteristieke woonboerderij.
De boerderij combineert het landelijke buitenleven met het dagelijkse wooncomfort en biedt volop mogelijkheden dankzij de aanwezigheid van een royale schuur op het erf. Het geheel staat op een perceel van 3.430 m2 en kijkt heerlijk vrij uit over de weilanden!
De woning beschikt over een energielabel A, heeft maar liefst 193 m2 aan woonoppervlakte en er zijn 4 slaapkamers aanwezig.
De gehele begane grond is voorzien van vloerverwarming (instelbaar met aparte zones) en er zijn 2 sfeervolle houtkachels aanwezig.
Een unieke plek net buiten Ommen, met wandelgebieden en fietspaden op loopafstand!
Met de fiets ben je in 10 minuten in het centrum Ommen.
Indeling
Begane grond (voorzien van vloerverwarming): Moderne ruime entree met trapopgang naar de eerste verdieping en toegang tot de meterkast, het toilet, de bijkeuken, woon/eetkamer en de keuken.
De ruime bijkeuken is voorzien van een aanrecht met spoelbak, inbouwkast met CV opstelling en de witgoedaansluitingen. De straatgerichte en lichte woonkamer biedt een heerlijk vrij uitzicht over de weilanden en is voorzien van een houten vloer en sfeervolle houtkachel. Door middel van schuifdeuren is een aparte eetkamer of bijvoorbeeld werkkamer bereikbaar. Aangrenzend, door middel van prachtige taatsdeuren, vind je de woonkeuken welke is voorzien van een Belgisch hardstenen vloer met vloerverwarming, tuindeur naar het terras, speksteen houtkachel en een handgemaakte keuken. Er is diverse inbouwapparatuur aanwezig zoals een spoelbak, koelkast, oven met fornuis en afzuigschouw.
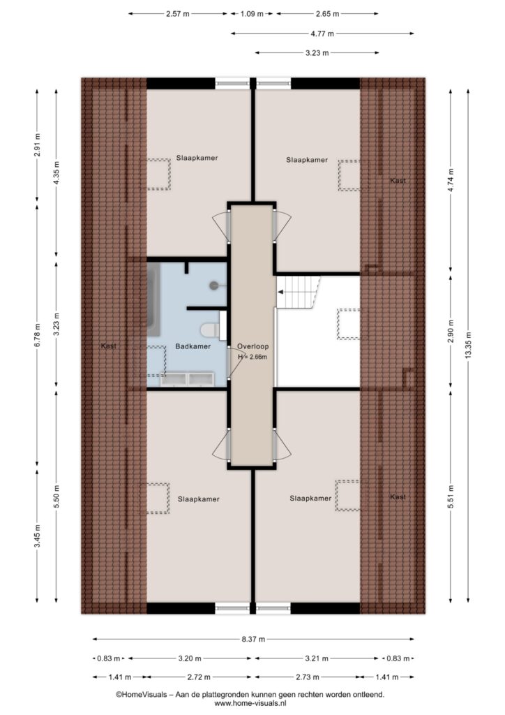
Eerste verdieping: Overloop met toegang tot de badkamer en een viertal ruime slaapkamers. Alle slaapkamers zijn voorzien van een dakraam en opbergruimte achter de knieschotten. De badkamer is voorzien van vloerverwarming, een toilet, ligbad, designradiator, dubbele wastafel met spiegel en ruime inloopdouche.
Zolder: Via vlizotrap te bereiken bergzolder, ideaal als opbergruimte.
Buiten: Royale tuin rondom de woning voorzien van diverse zonneterrassen. Vanuit allerlei plekken in de tuin heb je vergezichten over de weilanden en uitzicht op de dieren. De volledig geïsoleerde schuur is voorzien van vloerverwarming, krachtstroom en dubbele deuren. Deze multifunctionele ruimte leent zich voor verschillende doeleinden en heeft een verdieping welke middels een vaste trap te bereiken is, ideaal voor een klusser of voor het opbergen van veel spullen.
Bijzonderheden:
– Woonboerderij op een fijne locatie aan de rand van Ommen;
– Ruime woning met vier slaapkamers en 193 m3 aan woonoppervlakte;
– Royaal perceel van 3.430 m2;
– Woning is gebouwd in 2018;
– Pannen dak met vlechtwerk in de gevel;
– Energielabel A;
– Royale schuur met verdieping en krachtstroom aanwezig;
– Vrij zicht voor en achter!;
– Vrij wonen in het buitengebied en toch dichtbij de voorzieningen van Ommen.
Volledige omschrijving weergeven
Kenmerken
€ 1.295.000,- k.k.


