Omschrijving
Volop ruimte en veel mogelijkheden. Dat kenmerkt deze ruime vrijstaande woning aan de Kosterskamp te Den Ham. Het geheel is gelegen op een perceel van 564 m2 aan een rustige doodlopende straat. Als extra beschikt de woning over maar liefst 24 zonnepanelen, waarmee een mooie stap richting verduurzaming is gezet. Met vier grote slaapkamers is deze woning een échte gezinswoning.
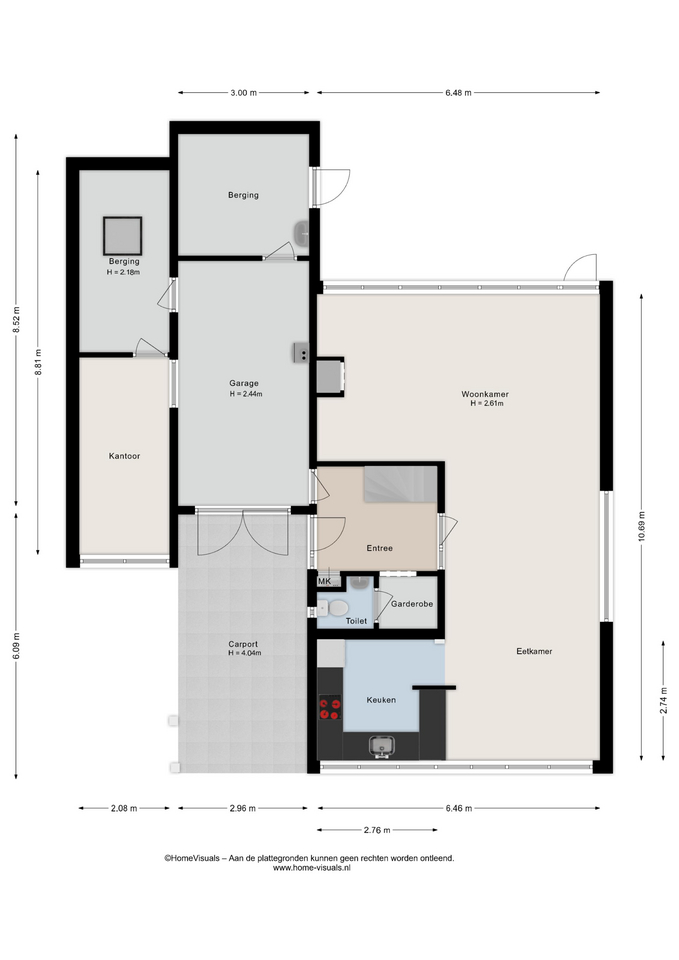
De begane grond beschikt over een royale woonkamer met fraaie houten gebinten en een strakke open keuken. De aangebouwde garage met carport, bijkeuken, kantoorruimte en extra berging zijn mooie toevoegingen aan dit geheel.
De achtertuin is stijlvol ingericht, voorzien van diverse terrassen, gazons, een riante vijver en een tuinhuis.
Vanuit de woning ligt alles binnen handbereik, zo is er op loopafstand een bakker, het dorpse centrum met supermarkt en een basisschool. Daarnaast is natuurgebied ‘de Mageleresch’ op korte afstand gelegen.
Indeling
Begane grond: Ruime entree/hal met trapopgang, meterkast en garderobe met toegang tot het toilet met fontein. Verder toegang tot de garage. Royale L-vormige woonkamer met brede schouw met open haard en grote raampartijen; deze zorgen voor de grote hoeveelheid lichtinval. In de woonkamer is er volop ruimte voor een zit- en eethoek, waar de houten gebinten mooie details zijn. Vanuit de woonkamer is er toegang tot een strakke open keuken met bar, inductiekookplaat, vaatwasmachine en combioven.
De garage is ruim en voorzien van een carport. Tevens is hier de CV-combiketel gesitueerd. Vanuit de garage is er verder toegang tot een bijkeuken en een berging, welke verder toegang biedt tot een kantoorruimte aan huis. Eventueel kun je deze ruimtes ombouwen tot slaap- en badkamer, zodat je hier gelijkvloers kunt wonen en slapen.
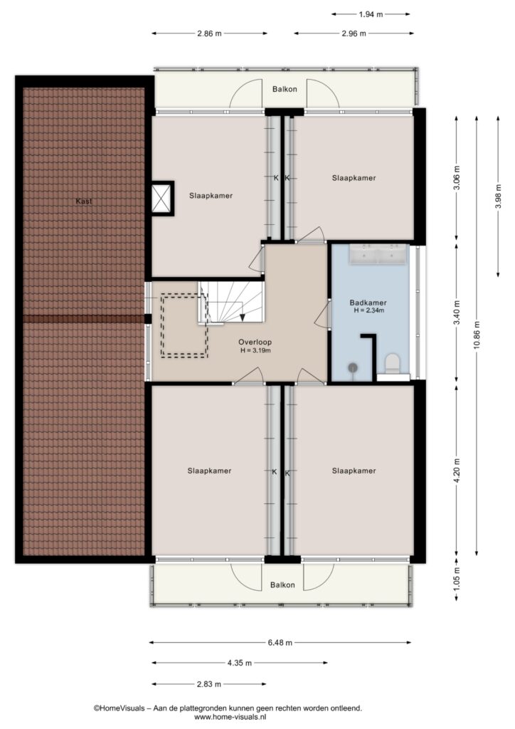
Eerste verdieping: Overloop met vaste trap en toegang tot de vier slaapkamers, de badkamer en de bergruimte die zich boven de garage bevindt. Aan weerszijden van de overloop tref je twee slaapkamers aan, elk met toegang tot een balkon en veel bergruimte. De badkamer is aangenaam licht en voorzien van een breed wastafelmeubel met dubbele wastafels, een inloopdouche, toilet en vloerverwarming.
Bijzonderheden:
– Echte gezinswoning;
– Veel ruimte: maar liefst 168 m2 woonoppervlakte;
– Gelegen op een perceel van 564 m2;
– 24 zonnepanelen à 300 Wp per paneel;
– 4 royale slaapkamers;
– Mogelijkheid om berging te verbouwen tot slaap- en badkamer;
– Centraal gelegen: dicht bij het centrum en op steenworp afstand van de Mageleresch.
Volledige omschrijving weergeven
Kenmerken
€ 579.000,- k.k.


