Omschrijving
Deze vrijstaande recreatiewoning ligt op een unieke locatie, midden in het bos, op een perceel van maar liefst 9.840 m² eigen grond. Hier geniet je van de groene omgeving en veel privacy. De woning is niet op een park gelegen maar geheel op eigen grond. Hierdoor hoef je geen rekening te houden met parkregels en/of andere verplichtingen.
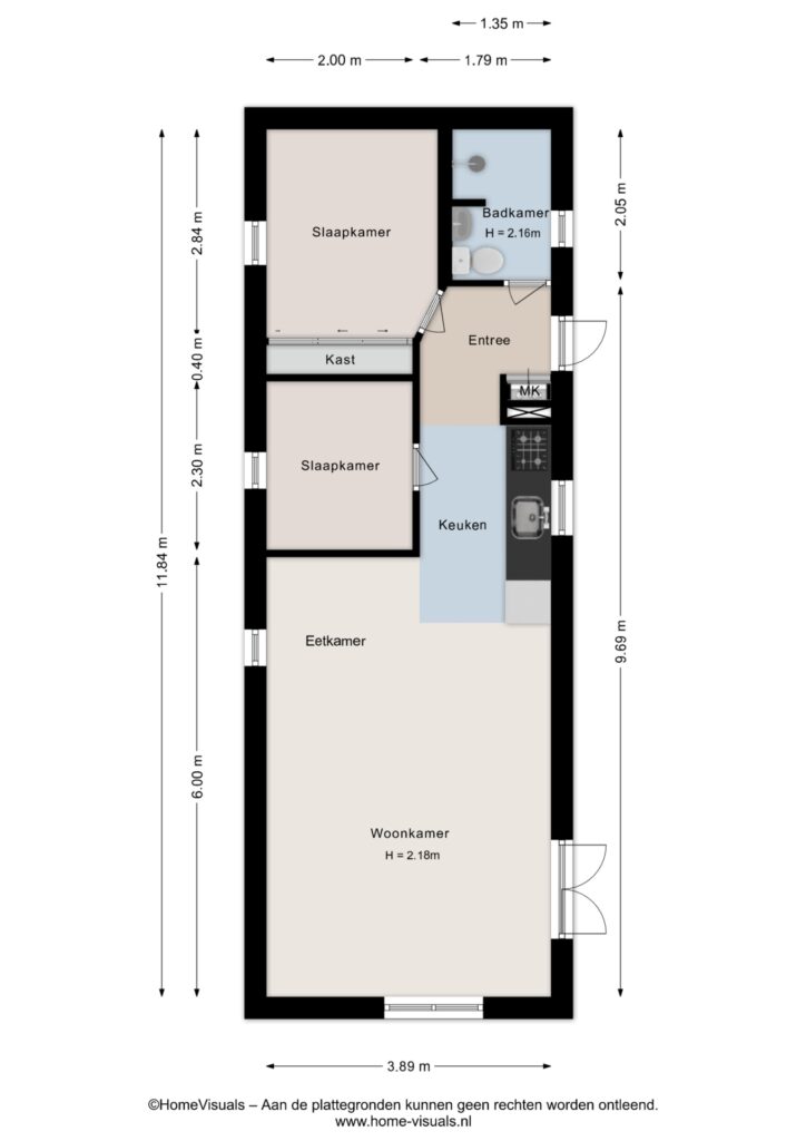
Via de entree stap je de woning binnen, waar de indeling overzichtelijk en doordacht is. Vanuit de hal heb je toegang tot de badkamer, de keuken en de verschillende vertrekken. De badkamer is functioneel ingericht en voorzien van een douche, enkele wastafel en toilet.
De woning beschikt over twee slaapkamers, beide van goed formaat.
De keuken bevindt zich centraal in de woning en staat in verbinding met de eetkamer en woonkamer. In de woonkamer zorgen de grote raampartijen en de schuifpui voor een prettige lichtinval en een directe verbinding met buiten. Via de schuifpui stap je zo de aangebouwde veranda op, een fijne plek om te genieten van de natuur om je heen.
Rondom de woning ligt een royaal perceel, waardoor je hier in alle rust kunt verblijven. De bosrijke ligging zorgt voor een unieke woonbeleving, met volop privacy en ruimte om te ontspannen.
Op het perceel is een vrijstaande houten berging en een aparte schuur aanwezig.
Bijzonderheden:
– Recreatiewoning, gebouwd in 2007;
– Gelegen op een perceel van 9.840 m²;
– Twee slaapkamers;
– Aangebouwde veranda bereikbaar via schuifpui;
– Rustige ligging midden in het bos;
– Veel privacy en natuurbeleving;
– Niet gelegen op een park;
– Eventueel te koop met inboedel.
Op korte afstand liggen gezellige plaatsen zoals Hardenberg en Ommen, waar je terechtkunt voor winkels, horeca en voorzieningen. Tegelijkertijd ervaar je hier volop rust en privacy, midden in een landschap waar je het hele jaar door kunt genieten van de seizoenen. Een ideale uitvalsbasis voor wie op zoek is naar ontspanning in de natuur, met alle gemakken binnen handbereik.
Volledige omschrijving weergeven
Kenmerken
€ 250.000,- k.k.


