Omschrijving
Nette 2-onder-1-kapwoning met garage gelegen op een perceel van 263 m2 met vrij uitzicht over groen (wadi). De woning staat op een geliefde locatie op loopafstand van het centrum van Ommen.
In totaal zijn er 2 slaapkamers op de eerste verdieping en is er een 3e slaapkamer op de tweede verdieping aanwezig. Eventueel is er de mogelijkheid om op de eerste verdieping eenvoudig een extra slaapkamer te realiseren. De achtertuin ligt op het noordwesten en is voorzien van een garage, berging en poort naar de oprit.
Een ideale woning voor gezinnen!
De woning is gelegen nabij het centrum van Ommen en op loopafstand vind je o.a. verschillende basisscholen, het voortgezet onderwijs, zwembad, bibliotheek, sporthal, en meerdere supermarkten.
Indeling
Begane grond: Entree/hal met trapopgang naar de eerste verdieping en toegang tot het toilet, meterkast, keuken en de woonkamer. Lichte doorzonwoonkamer met fraaie parketvloer en doorloop naar de eetkamer en keuken. De dichte keuken heeft een hoekopstelling met inbouwapparatuur zoals een oven, magnetron, vaatwasser, inductie kookplaat, afzuigkap en spoelbak. Via de keuken is de achtertuin bereikbaar, hier vind je de vrijstaande garage met berging/bijkeuken.
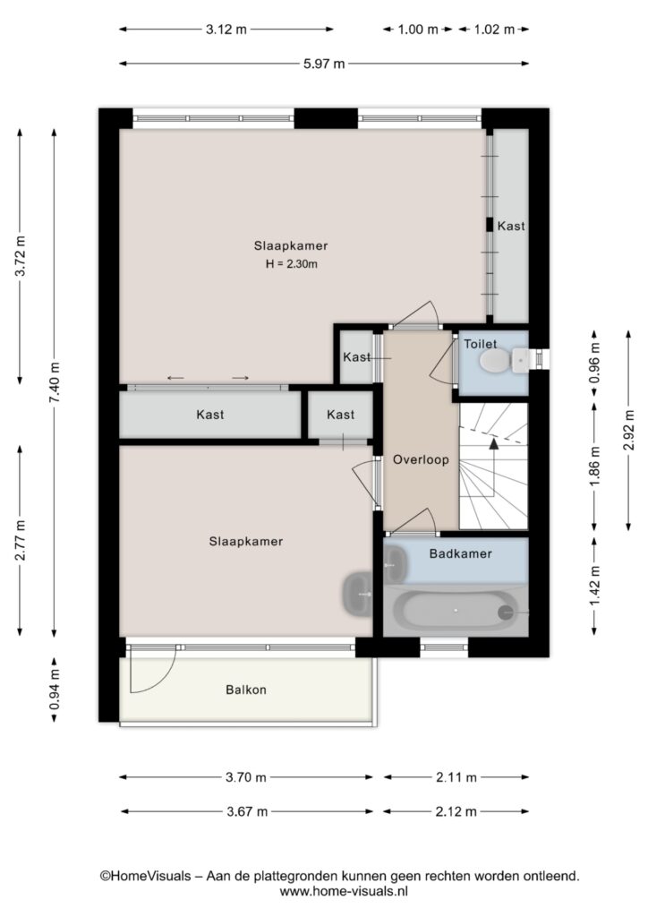
1e verdieping: Overloop met toegang tot 2 slaapkamers, vaste kast, apart toilet en de badkamer. De slaapkamer aan de voorzijde geef toegang tot het balkon en heeft een wastafel. De ruime slaapkamer aan de achterzijde is voorzien van 2 royale inbouwkasten, hier kan eventueel eenvoudig een extra slaapkamer gerealiseerd worden. De badkamer is voorzien van een ligbad, radiator en wastafelmeubel.
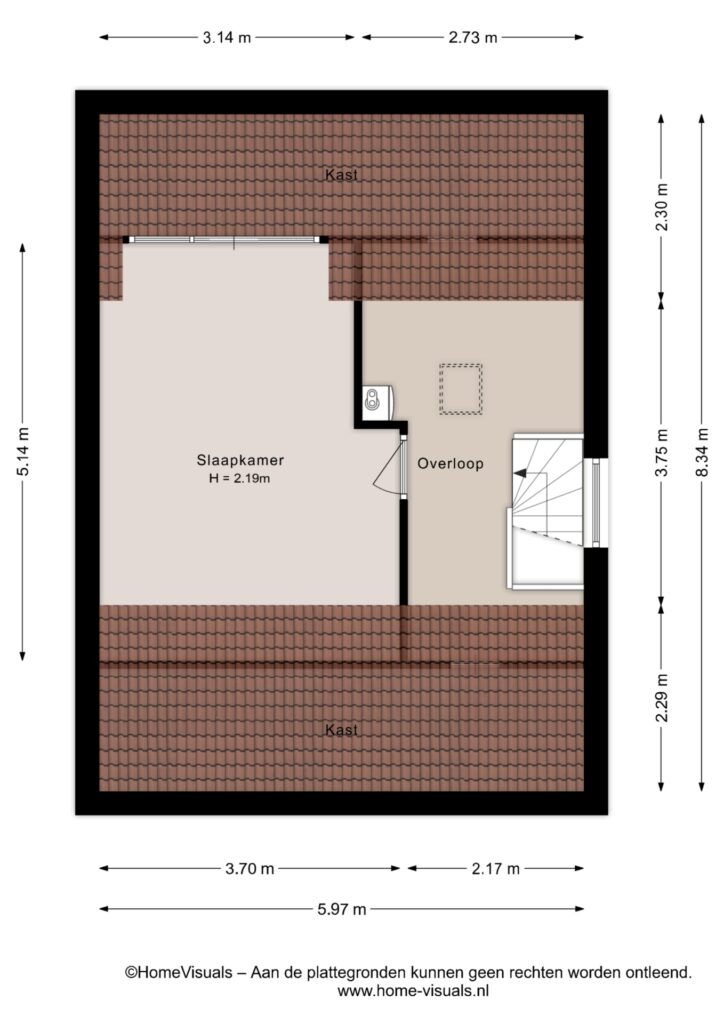
2e verdieping: Via vaste trap te bereiken 2e verdieping. Voorzolder met boiler en toegang tot de 3e slaapkamer met dakkapel en wastafel.
Achter de knieschotten is nog bergruimte aanwezig. De dakkapel is voorzien van kunststof kozijnen.
Buiten: Nette achtertuin op het noordwesten met garage, berging en poort naar de oprit. In de berging is een keukenblok aanwezig en is de CV ketel (Intergas 2023) geïnstalleerd. Aan de achterzijde van de woning hangen zonneschermen. De tuin is beschut en hierdoor ervaar je veel privacy. De oprit is ruim genoeg voor het parkeren van 2 a 3 auto’s.
Bijzonderheden:
– Gelegen op een kavel van 263 m2;
– 2-onder-1-kapwoning met 116 m² aan woonoppervlakte;
– 3 slaapkamers in de woning;
– CV ketel Intergas van bouwjaar 2023;
– Rolluiken aan de zijkant van de woning;
– Zonwering aan de voor- en achterzijde beneden;
– Gelegen nabij het centrum van Ommen;
– Voldoende parkeermogelijkheid op eigen terrein;
– Achtertuin met vrijstaande garage, berging en veel privacy;
– Goede ligging t.o.v. scholen, supermarkten, zwembad, sporthal, bibliotheek, centrum en andere voorzieningen.
Volledige omschrijving weergeven
Kenmerken
€ 379.000,- k.k.


