Omschrijving
In de groene en ruim opgezette woonwijk “Dante Noord” staat deze ruime hoekwoning met 128 m2 aan woonoppervlakte. De woning beschikt over een ruime oprit met carport, vier slaapkamers en een achtertuin met een praktisch schuurtje. Dankzij de royale indeling en de extra opbergruimte is dit een fijne gezinswoning met volop mogelijkheden.
Het geheel is gelegen op een gunstige locatie: een speeltuin direct tegenover de woning, en op fietsafstand vind je scholen, sportvoorzieningen, het Ommerbos, diverse winkels en het centrum van Ommen. De wijk zelf biedt volop groen met meerdere speelvelden, speeltuinen en vijvers. Kortom een ideale plek voor (jonge) gezinnen!
Indeling
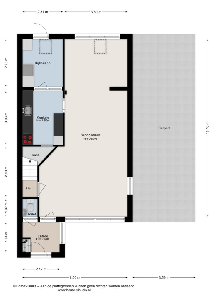
Begane grond: Via de entree is er toegang tot de meterkast, het toilet en de lichte doorzonwoonkamer. De woonkamer beschikt over grote raampartijen en veel lichtinval. De achterzijde van de woning is uitgebouwd, waardoor de woonkamer ruimer is geworden en er een praktische bijkeuken is toegevoegd. Vanuit de woonkamer is er toegang tot de hal met trapopgang naar de eerste verdieping. De keuken is via een open doorgang vanuit de woonkamer bereikbaar en voorzien van diverse inbouwapparatuur. Vanuit de keuken kom je in de bijkeuken, waar zich de witgoedaansluitingen bevinden en een achterdeur naar de tuin.
Eerste verdieping: Ruime overloop met toegang tot drie ruime slaapkamers, de badkamer en de trapopgang naar de tweede verdieping. Twee van de slaapkamers beschikken over een vaste kast, ideaal voor extra opbergruimte. De badkamer is voorzien van een douche, een tweede toilet en een wastafelmeubel.
Tweede verdieping: Op de tweede verdieping bevindt zich de cv-installatie en een vierde slaapkamer met extra opbergruimte achter de knieschotten. Een praktische verdieping die ook goed dient als een logeerkamer, werkruimte of hobbykamer.
Buiten: De achtertuin is gelegen op het zuidoosten en is een fijne plek om buiten te zitten. De tuin is voorzien van een schuurtje, ideaal voor het opbergen van fietsen, tuingereedschap of andere spullen.
Bijzonderheden:
– Gelegen in de geliefde woonwijk “Dante Noord”;
– Geheel gelegen op een perceel van 290 m2;
– Ruime woning met vier slaapkamers;
– De woning is aan de achterzijde uitgebouwd;
– Voldoende parkeergelegenheid op eigen oprit;
– Diverse voorzieningen op fietsafstand gelegen;
– Nabij het centrum van Ommen.
Volledige omschrijving weergeven
Kenmerken
€ 419.000,- k.k.


