Omschrijving
In het hart van Ommen, op de bovenste verdieping van een kleinschalig complex, bevindt zich dit gasloze appartement met twee slaapkamers. De woning heeft een woonoppervlakte van 55 m2 en is in 2023 volledig gerenoveerd, geïsoleerd en verduurzaamd. Het pand beschikt over een gezamenlijke entree met intercom en camera, zonnepanelen en een gedeelde berging. Kortom, een comfortabel en energiezuinig appartement op een centrale locatie.
Ommen heeft veel te bieden, waaronder leuke winkels, gezellige restaurantjes, wateractiviteiten op de Vecht en mooie fiets- en wandelroutes. Daarnaast is de centrale ligging van Ommen perfect, beschikt het over diverse uitvalswegen en een treinstation.
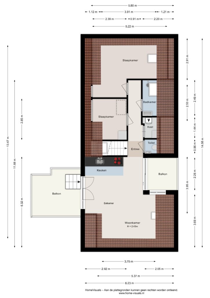
Indeling appartement:
Entree met toegang tot de woonkamer met open keuken, twee slaapkamers, de badkamer, het toilet en een vaste kast met de boiler en wasmachineaansluiting. De woonkamer met open keuken is een lichte en aangename ruimte dankzij de grote raampartijen. Vanuit de woonkamer is er toegang tot een balkon en dakterras, vanuit hier heb je uitzicht over het centrum van Ommen. De keuken is modern ingericht en voorzien van diverse inbouwapparatuur, waaronder een koelkast met vriesvakje, combi-magnetron, inductiekookplaat, vaatwasser en afzuigkap. Het appartement beschikt over twee slaapkamers, waarvan één momenteel in gebruik is als kantoor, ideaal voor thuiswerken of als hobbykamer. De badkamer is compact maar efficiënt ingericht en beschikt over een douche en een wastafelmeubel.
Bijzonderheden:
– Gelegen in het centrum van Ommen;
– Volledig geïsoleerd en gerenoveerd;
– Twee slaapkamers aanwezig;
– Energielabel A+;
– 5 zonnepanelen in eigendom;
– Verwarmen/koelen met airco;
– Voorzien van een centrale hal en berging.
Volledige omschrijving weergeven
Kenmerken
€ 325.000,- k.k.


