Omschrijving
Wonen nabij de Vecht én het centrum van Ommen!
Deze goed onderhouden en verduurzaamde gezinswoning is voorzien van 4 slaapkamers en 126 m² aan woonoppervlakte. De woning ligt op een fijne locatie, op loopafstand van rivier de Vecht en het gezellige centrum van Ommen. De woning is door de jaren heen flink verduurzaamd met volledige isolatie, HR++ glas en 10 zonnepanelen (geplaatst in 2025). Dat zorgt niet alleen voor comfort, maar ook voor lage energielasten en een toekomstbestendige woning.
Indeling
Begane grond: Via de overdekte entree kom je binnen in de hal met toegang tot het toilet, de meterkast en de trapopgang naar de eerste verdieping. Vanuit de hal loop je door naar de lichte woonkamer. Deze ruimte is ruim opgezet, biedt voldoende plek voor een gezellige zithoek en is voorzien van een gezellige open haard!
Aan de achterzijde bevindt zich de eetkamer met openslaande deuren naar de tuin. Aansluitend vind je de keuken, die praktisch is ingedeeld en voorzien van diverse inbouwapparatuur zoals een oven, magnetron, inductie kookplaat, koelkast en een vaatwasser. Onder de trap bevindt zich een handige kelder voor extra bergruimte. Hier is ook de cv installatie gevestigd.
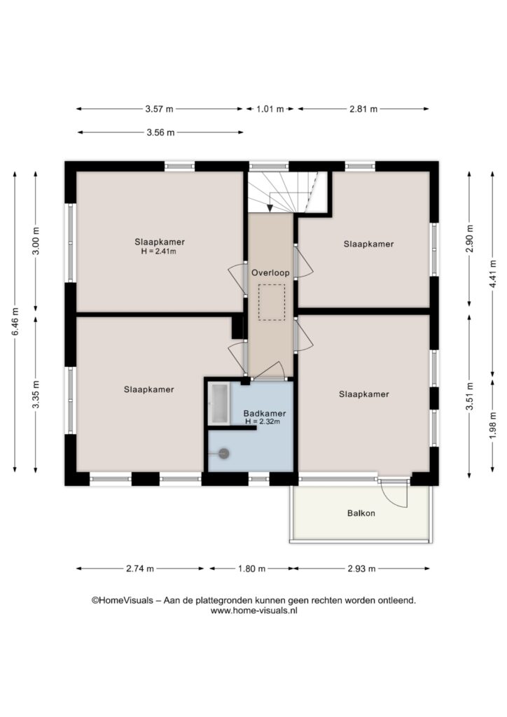
Eerste verdieping: Vanaf de overloop heb je toegang tot vier slaapkamers en de badkamer. De slaapkamers zijn goed van formaat en bieden voldoende ruimte. De badkamer is praktisch ingericht en voorzien van een douche en wastafel. Vanaf de overloop is de vliering bereikbaar. Ideaal voor het opslaan van spullen!
Buiten: Aan de voorzijde van de woning is een oprit aanwezig, zodat je de auto op eigen terrein kunt parkeren. De achtertuin is gelegen op het noordwesten en is ingericht met een gezellige zithoek onder de overkapping. De vrijstaande houten berging biedt ruimte voor fietsen, gereedschap en tuingereedschap.
De woning ligt nabij de rivier de Vecht en het centrum van Ommen. Scholen, winkels, en het station bevinden zich allemaal op korte afstand. Een ideale plek voor wie graag alle voorzieningen binnen handbereik heeft. De achtertuin is via een dubbele deur ook achterom te bereiken!
Bijzonderheden:
– Gelegen nabij rivier de Vecht en het centrum van Ommen;
– Door de jaren heen verduurzaamd;
– Voorzien van volledige isolatie en HR++ beglazing;
– 10 zonnepanelen (geplaatst in 2025);
– Ruime woonkamer en eetkamer met veel lichtinval;
– Praktische keuken met inbouwapparatuur;
– 4 slaapkamers op de eerste verdieping;
– Eigen oprit met parkeergelegenheid op eigen terrein;
– Achtertuin met vrijstaande houten berging en fraaie overkapping;
– Achterom bereikbaar.
Volledige omschrijving weergeven
Kenmerken
€ 519.000,- k.k.


