Omschrijving
Deze 2-1-kapwoning is gelegen aan ’t Spoor in Vroomshoop op loopafstand van diverse voorzieningen zoals horeca, winkels en scholen. De woning staat op een perceel van 273 m2, heeft 3 slaapkamers op de verdieping en een vrijstaande stenen garage. De achtertuin is gelegen op het zonnige zuiden en voorzien van een achterom via de oprit. De woning heeft veel privacy, zowel aan de voor- als achterzijde heb je geen inkijk van omliggende huizen.
De uitstekende ligging ten opzichte van het dorpscentrum, maakt het mogelijk om diverse voorzieningen te voet te bereiken. Denk hierbij aan supermarkten, sportfaciliteiten, basisscholen en het station Vroomshoop.
Indeling
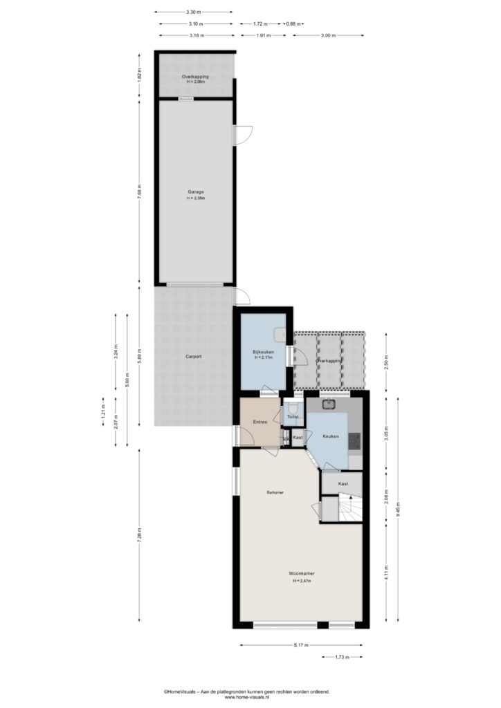
Begane grond: Entree/hal met meterkast, toilet en toegang tot de bijkeuken en de woonkamer. De woonkamer is voorzien van een laminaatvloer, deur met trapopgang naar de eerste verdieping en doorloop naar de half open keuken. De hoogglans donkerrode hoekkeuken is voorzien van een natuurstenen blad en inbouwapparatuur zoals een koelkast, vaatwasser, combi oven/magnetron en gaskookplaat met afzuigkap. In de keuken vind je nog 2 inbouwkasten, waarvan er één zeer ruim is. De bijkeuken is voorzien van witgoedaansluitingen, wateraansluiting met uitstortbak en deur naar de tuin met overkapping.
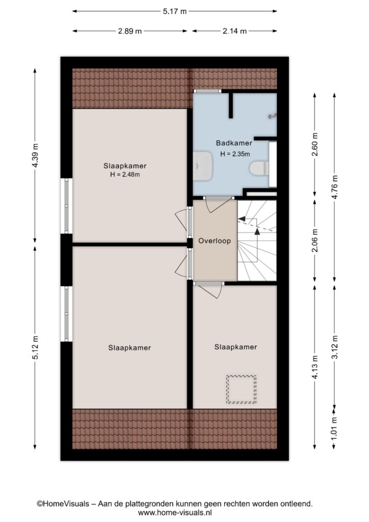
Eerste verdieping: Overloop met toegang tot drie slaapkamers en de badkamer. De badkamer is uitgerust met een inloopdouche, designradiator, wastafelmeubel en toilet.
Zolder: Via vaste trap te bereiken open zolder. Overloop met CV installatie en bergruimte achter de knieschotten.
Buiten: Achtertuin op het zuiden met overkapping en fietsenberging. Via de achtertuin is de garage bereikbaar welke is voorzien van elektra een loopdeur en een kanteldeur. De aangebouwde carport is van 2019 en voorzien van inbouwspots.
Bijzonderheden:
– 2-1-kapwoning met vrijstaande garage;
– Gelegen op een perceel van 273 m2;
– Veel privacy, geen inkijk aan de voor- en achterzijde;
– Voorzien van 3 slaapkamers en een ruime zolder;
– Schilderwerk is bijgehouden;
– Ruime carport van november 2019;
– Achtertuin op het zuiden;
– Uitstekende ligging t.o.v. het centrum en voorzieningen!
Volledige omschrijving weergeven
Kenmerken
€ 379.000,- k.k.


