Terug naar aanbod
7731 CS
Ommen

Kerkplein 6

€ 325.000,- k.k.
177 m2
A
Neem contact op

Omschrijving

Op zoek naar een winkelpand op een top locatie in het hart van Ommen? Dit object aan het Kerkplein biedt een uitstekende A1 locatie van ca. 177m², waarvan ca. 149m² winkelruimte op de begane grond. De ruimte is flexibel in te richten en biedt volop mogelijkheden voor een breed scala aan ondernemingen.

De winkelruimte is gelegen in een van de drukst bezochte delen van het centrum van Ommen, met veel voetverkeer en een divers aanbod van winkels in de directe omgeving. De locatie is ideaal voor ondernemers die zich willen vestigen in het centrum van Ommen.
Het object valt binnen het bestemmingsplan ‘Centrum Ommen’ met enkelbestemming Centrum – 1. De aangewezen gronden zijn bestemd voor onder andere detailhandel (uitgezonderd supermarkten), horecabedrijven in de categorie I en II.

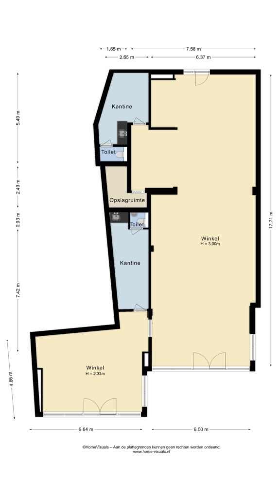
Het pand is voorzien van twee kantines, beide uitgerust met een keuken en toilet, wat extra functionaliteit biedt voor personeel of klanten. Daarnaast is er voldoende toiletvoorziening aanwezig voor het publiek. De ruimte is goed onderhouden en wordt leeg opgeleverd.

Bijzonderheden:

– Toplocatie in het centrum van Ommen;
– Ruime winkelruimte van ca. 149m²;
– Twee kantines met keuken en toilet;
– Zicht locatie met veel passerend verkeer;
– Diverse winkelmogelijkheden in de buurt;
– De ruimte wordt leeg opgeleverd;
– Ideaal voor verschillende branches.

Ommen is een populaire bestemming voor zowel lokale bewoners als toeristen. Dit pand biedt ondernemers de kans om te profiteren van het ruime klantenpotentieel in een stad die bekend staat om zijn gezellige sfeer en aantrekkelijke winkelgebied.

Volledige omschrijving weergeven

Kenmerken

Prijs

€ 325.000,- k.k.

Oppervlakte
177 m2
Energieklasse
A
Bouwjaar
1968 Vanaf 1960 t/m 1970