Terug naar nieuwbouwproject

Naam
De Nieuwe Brink

Vanaf: € 1,-

Omschrijving

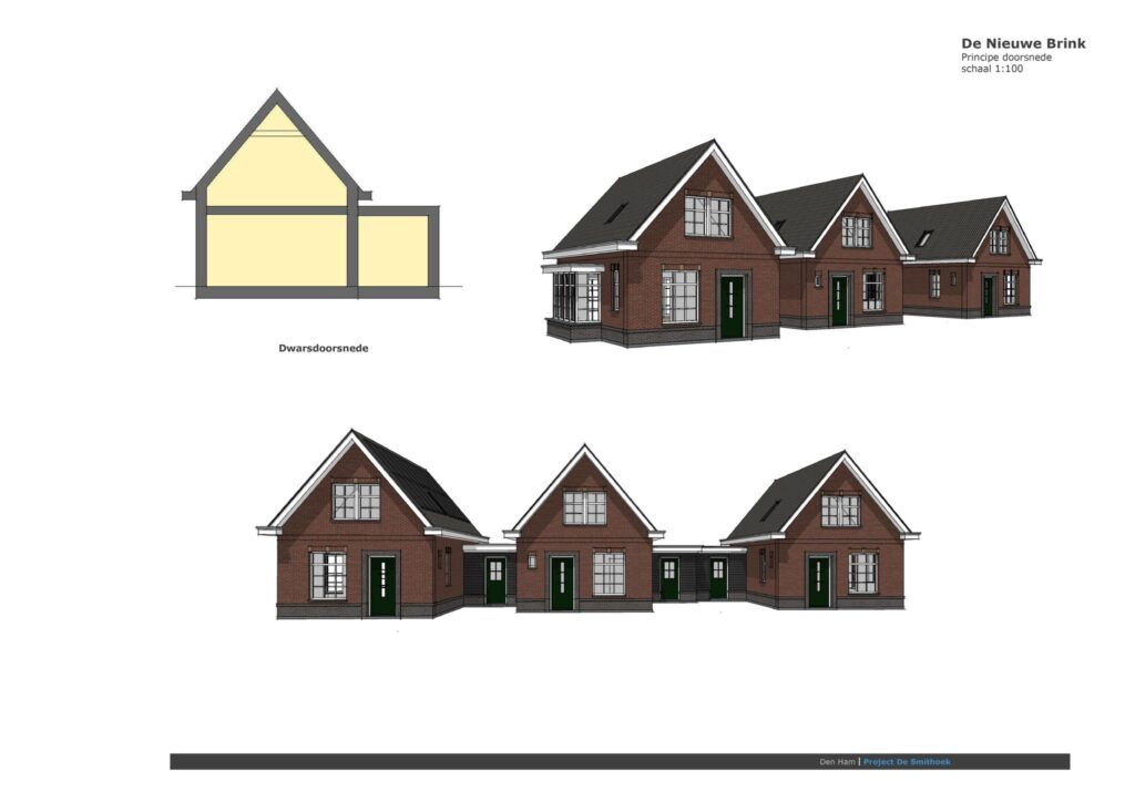
‘DE NIEUWE BRINK’: LEVENSLOOPBESTENDIGE WONINGEN
In totaal worden er 6 geschakelde levensloopbestendige woningen type ‘De Nieuwe Brink’ gebouwd.
De standaard woning heeft een indeling als onderstaand, uiteraard zijn hier variaties op bespreekbaar zoals een slaapkamer of badkamer op de begane grond. Deze voorbeelden zijn als plattegronden toegevoegd.

Kavelgroottes en prijzen:
Kavel 5 De Nieuwe Brink 5 perceel grootte 303 m2, koopsom € 577.000,- v.o.n.
Kavel 6 De Nieuwe Brink 6 perceel grootte 234 m2, koopsom € 550.000,- v.o.n.
Kavel 7 De Nieuwe Brink 7 perceel grootte 259 m2, koopsom € 560.000,- v.o.n.
Kavel 8 De Nieuwe Brink 8 perceel grootte 214 m2, koopsom € 547.000,- v.o.n.
Kavel 9 De Nieuwe Brink 9 perceel grootte 234 m2, koopsom € 550.000,- v.o.n.
Kavel 10 De Nieuwe Brink 10 (met erker) perceel grootte 279 m2, OPTIE

De verkoopprijs van de woning is vrij op naam en inclusief btw, grond- en overdrachtskosten (notaris, kadaster, etc.), bouwkosten woning, legeskosten, aansluitkosten nutsbedrijven, sanitair, kosten architect, -constructeur en -makelaar en een Casco All-Risk verzekering tijdens de bouw.

De verkoopprijzen zijn exclusief keuken, stoffering, behangwerk, tuinaanleg, straatwerk en meer-/minderwerk.

Is dit (bijna) uw droomhuis?
Neem dan contact op met ons kantoor. De kopers hebben hun eigen inbreng. De woning wordt zoveel mogelijk met maatwerk opgeleverd, met allerlei opties en specifieke wensen.

Houdt er rekening mee dat er niet gebouwd wordt onder de nieuwbouwgarantie van BouwGarant.

Planning en verkoop:
– De verkoop van de woningen start in het 2e kwartaal van 2024;
– Het ontwerp bestemmingsplan De Smithoek wordt nu verder ingediend en het definitieve bestemmingsplan wordt, naar verwachting, maart 2024 onherroepelijk;
– De bouwvergunningen zullen in januari 2024 worden ingediend. De verkoopoverdracht van de eerste kavels die worden verkocht, vindt plaats in maart 2024;
– Bouwbedrijf Lindenhovius kan dan starten met de bouw van de eerste woningen in het 2e kwartaal 2024. De bouwtijd duurt ca. 5 maanden.

Volledige omschrijving weergeven

Kenmerken

Koopaanneemsom
€ 1,- t/m € 577.000,-
Gebruikersoppervlakte
Woonoppervlakte van
112 m2
t/m
Woonoppervlakte tot en met
115 m2
Aantal Bouwnummers
6
Soort
Woonhuissoort
Eengezinswoning
Type
Objecttype
Woonhuis