Terug naar aanbod
7683 AV
Den Ham

Ommerweg 1a

€ 950 p/m
72 m2
D
Neem contact op
Nieuw

Omschrijving

Op loopafstand van het karakteristieke centrum van Den Ham wordt een gedeelte van een woning (inwoongedeelte) te huur aangeboden! Deze woning is gelegen op een royaal perceel met uitzicht over landerijen en ligt tevens vlakbij het Sallands Kampenlandschap “het Eerder Achterbroek” en diverse sociale voorzieningen.

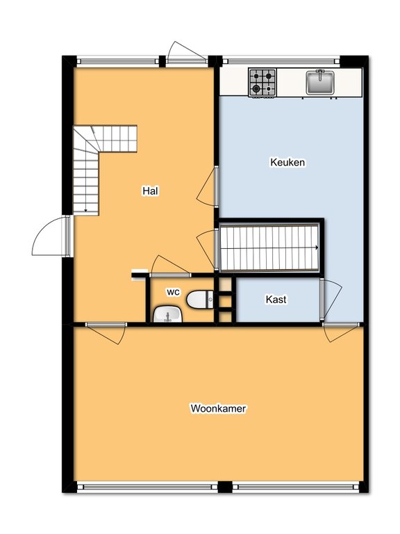
Begane grond:
Entree/hal met trapopgang naar de 1e verdieping en toegang tot de woonkamer, keuken, toilet en kelder. De woonkeuken is voorzien van een vaste kast en diverse inbouwapparatuur, waaronder een keramische kookplaat, vaatwasser en oven. Vanuit de keuken is er een prachtig uitzicht over de landerijen aan de achterzijde van de woning. De woonkamer bevindt zich aan de voorzijde van de woning en is voorzien van 2 grote raampartijen. In de hal bevinden zich de wasmachine-/ en drogeraansluiting.

1e verdieping:
Overloop met toegang tot de slaapkamer, 2e toilet en de badkamer. De badkamer is voorzien van een wastafel en een inloopdouche.

Belangrijkste huurvoorwaarden:
– Per direct beschikbaar;
– Huisdieren zijn niet toegestaan;
– De woning wordt gestoffeerd opgeleverd;
– Waarborgsom ter grootte van één maand huur;
– Woning welke uitermate geschikt is voor een 1- of 2-persoons huishouden;
– Huurovereenkomst wordt in eerste instantie aangegaan voor 12 maanden;
– Om voor deze woning in aanmerking te komen wordt getoetst op inkomen / vermogen;
– Huurprijs is excl. gas, water en elektra (maandelijks voorschotbedrag: € 240,00 , dit wordt jaarlijks verrekend).

Volledige omschrijving weergeven

Kenmerken

Vraagprijs

€ 950 p/m

Type woning
Twee onder één kapwoning
Perceeloppervlakte
1125 m2
Woonoppervlakte
72 m2
Energieklasse
D
Bouwjaar
1967 Vanaf 1960 t/m 1970