Omschrijving
Zoek je een woning die écht af is, geheel gasloos en op een ideale locatie in het Drentse Koekange ligt? Dan moet je deze geschakelde woning aan de Dorpsstraat 23 echt gezien hebben. Goed geïsoleerd, 131 m2 woonoppervlakte en gelijkvloers wonen en slapen kenmerken deze woning. Op de begane grond heb je dus een slaap- en badkamer tot je beschikking, maar natuurlijk ook een fijne woonkamer en een nette keuken. Als extraatje vind je hier een fraaie serre die je op de warmere dagen lekker open kunt zetten én een aangebouwde garage met volop opslagruimte. Op de eerste verdieping zijn nog eens twee ruime slaapkamers en een tweede badkamer te vinden. Dit alles in een karakteristiek ogende woning met vloerverwarming, warmtepomp en energielabel A, wat wil je nog meer?
Indeling
Begane grond: binnenkomst in de hal met de meterkast, het toilet met fonteintje en de trapopgang naar de eerste verdieping met daaronder een praktische trapkast. Verder toegang tot de woonkamer. De woonkamer is dankzij de raampartij bij de keuken en de openslaande deuren naar de serre aangenaam licht. Daarnaast beschikt de woonkamer over een speelse indeling, waardoor er veel mogelijkheden zijn voor jouw inrichting. De keuken bevindt zich aan de voorzijde en is van alle gemakken voorzien. Doordat de woning geheel gasloos is, zal je hier dan ook geen gaskookplaat zien, naar juist een inductiekookplaat. Daarnaast beschikt de keuken over een combi-oven, koelkast, vriezer, vaatwasser en een Quooker-kraan. Om de keuken en het sanitair zo kalkvrij mogelijk te houden is er een waterontharder aanwezig.
Via het zitgedeelte loop je verder naar de hal aan de achterzijde met daarin de wasmachineaansluiting. Vanuit deze hal is er toegang tot de garage en de slaap- en badkamer op de begane grond. Hierdoor kun je in deze woning gelijkvloers wonen en slapen! De badkamer beschikt over een inloopdouche, toilet en een breed wastafelmeubel. De aangebouwde serre is zowel vanuit de woonkamer als vanuit de hal te bereiken en biedt een fijne, extra plek om te zitten. In de aangebouwde garage is er volop ruimte voor de fietsen, een aanhanger of een (project)auto!
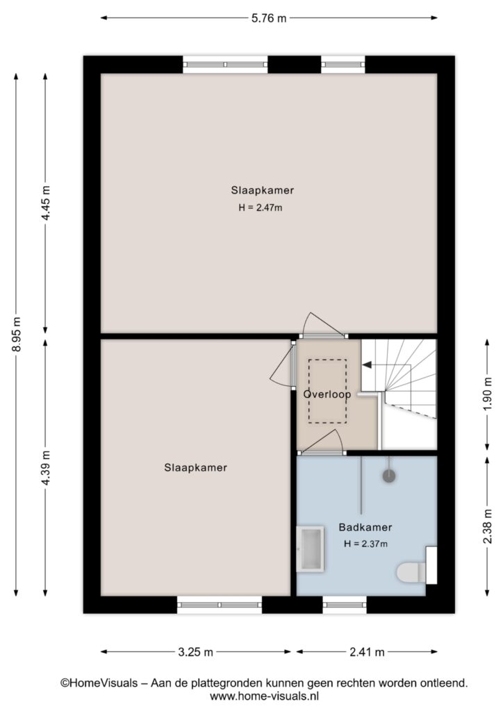
Eerste verdieping: de trap brengt je op de overloop van de eerste verdieping waar je twee ruime slaapkamers en een tweede badkamer tot je beschikking hebt. Deze badkamer beschikt over een inloopdouche, toilet en wastafelmeubel. Verder is er vanaf de overloop middels een vlizotrap toegang tot een praktische vliering.
Buiten: de voortuin van de woning is voor het grootste gedeelte bestraat met links een plantenperk dat met de buren is gedeeld. Hierdoor is er voldoende ruimte om meerdere auto’s te parkeren én er is de mogelijkheid om nog jouw eigen draai aan de tuin te geven, mocht je groene vingers hebben.
De achtertuin is netjes en voorzien van een plantenperk en bestrating. De bestrating in de serre loopt over in de achtertuin en wanneer je de schuifdeuren van de serre wagenwijd openzet, verbind je de binnenruimte met buiten. Zeker in het voorjaar en in de zomer geen overbodige luxe. Verder zorgen de grote lichtkoepels in de serre en in de woonkamer voor extra daglichtinval. De lichtkoepels zijn tevens voorzien van elektrische zonwering.
Bijzonderheden:
– 131 m2 woonoppervlakte;
– 325 m2 perceeloppervlakte;
– Gelijkvloers wonen en slapen;
– Inpandige garage met elektrische deur;
– Fraaie serre;
– Uitstekend geïsoleerd en volledig gasloos;
– Uitstekend geïsoleerd en volledig gasloos;
Volledige omschrijving weergeven
Kenmerken
€ 439.000,- k.k.


