Zonnebloemweg 10-035
Omschrijving
Schitterend gelegen, aan de voet van de Lemelerberg op Buitenplaats Berg & Bos, staat deze vrijstaande recreatiebungalow op een ruim perceel van 759 m² (eigen grond) en met een op het westen gelegen terras. De woning heeft in totaal 5 slaapkamers en twee badkamers, waarvan één slaapkamer en badkamer gelegen zijn op de begane grond. Tevens is de woning voorzien van centrale verwarming en is deze volledig geïsoleerd. De woning ligt heerlijk vrij en wordt omringt door een bosrijke omgeving. Daarnaast zijn er volop mogelijkheden om te wandelen en te fietsen. Een ideale plek voor rustzoekers en natuurliefhebbers.
Kortom, een heerlijke plek om te ontspannen, omringd door natuur en ruimte.
Indeling:
Begane grond: hal, badkamer met toilet, slaapkamer, woonkamer met open haard en erker, open keuken voorzien van vaatwasser, kookplaat, afzuigkap, koelkast en combi magnetron, een buiten af te sluiten berging voor fietsen, tuinmeubelen en/of tuingereedschap.
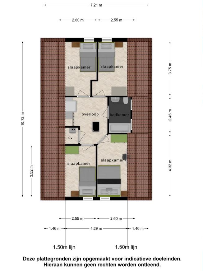
Eerste verdieping: overloop met toegang tot vier slaapkamers, badkamer met bad, douche en toilet, stookruimte.
Tweede verdieping: bergzolder welke middels een vlizotrap bereikbaar te maken is.
De tuin welke rondom de woning is gelegen, is een oase van rust. Zo biedt de diepte van de tuin meer dan genoeg mogelijkheden om optimaal te genieten van het buitenleven. Het resultaat is dat je hier dan ook op een wel heel fraai en rustig plekje zit.
Bijzonderheden:
– Gelegen op een perceel van 759 m2;
– Slapen en baden op de begane grond;
– Energielabel B;
– De parkkosten bedragen circa € 540,00 per jaar;
– Meerdere parkeerplaatsen op eigen terrein;
– Buiten- en binnenschilderwerk is in 2022 uitgevoerd;
– Toegankelijk voor mindervaliden;
– Grootste type woning;
– U wordt lid van de VvE “Berg en Bos”;
– Volledig geïsoleerd;
– De bungalow biedt goede verhuurmogelijkheden;
– Gelegen in een bosrijke omgeving en aan de voet van de Lemelerberg;
– Oplevering in overleg.
Kortom: rust en vrijheid in een schitterend in een ongeschonden natuurgebied, deel uitmakend van de Sallandse Heuvelrug. Het gezellige stadje Ommen, dat op korte afstand van het park ligt, biedt alle voorzieningen die je je kunt wensen.
Algemeen:
In de buurt kunt u winkelen in de nabij gelegen plaatsen Ommen en Nijverdal of als u wilt genieten van de mooie omgeving, dan zijn er diverse wandel- of fietsroutes door het prachtige Overijsselse landschap. Denk hierbij aan het wandelnetwerk Vechtdal met het Pieterpad, het Vechtdalpad langs de uiterwaarden van de Vecht of het uitgebreide fietsnetwerk Vechtdal Overijssel met zijn veel aansprekende fietsroutes. Ook valt er genoeg te beleven op cultuurgebied zoals het Nationaal Tinnen Figuren Museum, Streekmuseum Ommen, Landbouwmuseum De Laarman, Memory museum Nijverdal of Beeldentuin Witharen.
Volledige omschrijving weergeven
Kenmerken
€ 345.000,- k.k.


