Omschrijving
Prachtig gelegen op de hoek van het gebouw bieden we dit 3-kamerappartement met balkon, berging en mogelijk eigen garage aan! Het appartement is gelegen op de eerste verdieping in Residentie “De Stadshaghen”, welke zich bevindt aan de rand van Ommen, op loopafstand van het centrum, nabij de rivier de Vecht en omringd door een grote vijver. Optioneel kan de garage bijgekocht worden.
Ommen heeft veel te bieden, waaronder leuke winkels, gezellige restaurantjes, wateractiviteiten op de Vecht en mooie fiets- en wandelroutes. Daarnaast is de centrale ligging van Ommen perfect, beschikt het over diverse uitvalswegen en een treinstation.
Indeling
Begane grond appartementencomplex Residentie “De Stadshaghen”: Middels meerdere ingangen komt u het complex binnen met ruime aankomsthal en receptie. Via de lift of trap kunt u alle verdiepingen bereiken. Ook het souterrain, waar zich alle bergingen bevinden.
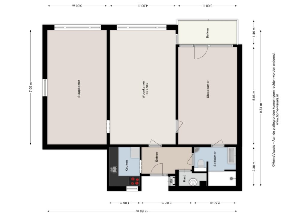
Appartement: Via een ruime galerij heeft u toegang tot het appartement. Op de gang naast de voordeur bevindt zich de meterkast en een bezemkast. De entree/hal geeft toegang tot een provisiekast, de badkamer, de keuken en de woonkamer. De keuken is voorzien van een hoekopstelling keuken met spoelbak, elektrische kookplaat, oven, koelkast en vaatwasser. De ruime woonkamer heeft door de grote raampartijen veel lichtinval en is voorzien van een fraaie parketvloer en airconditioning. Aan beide zijden van de woonkamer is een slaapkamer waarvan één voorzien is van een airconditioning en één toegang geeft tot het balkon en de badkamer. Het balkon is voorzien van een zonnescherm en kijkt vrij uit over de verzorgde tuin. De badkamer is uitgerust met een inloopdouche, wastafelmeubel met spiegel, toilet en wasmachineaansluiting.
Bijzonderheden:
– Het appartement is gelegen op de hoek van het gebouw op de eerste verdieping;
– Airconditioning in de woonkamer en linker slaapkamer;
– Voorzien van een berging in het souterrain. 2.5m x 2.5m (bereikbaar middels lift en trappenhuis);
– Mogelijkheid tot bijkopen van eigen garage op de hoek met elektrische sectionaal deur;
– Er is intercomverbinding met de hoofdingang;
– Alle ramen zijn voorzien van horren en elektrische zonwering;
– Het complex is in 2011 geheel gerenoveerd en o.a. v.v. nieuwe gevel, isolatie, kunststof kozijnen;
– Het appartement is voorzien van glasvezelaansluiting en telefoonaansluiting;
– Er ligt een verzorgde tuin rondom het complex;
– In 2024 is de meterkast vernieuwd;
– Centraal maar toch heerlijk rustig wonen;
– Nabij diverse sociale voorzieningen;
– Gelegen op mooie locatie in Residentie “De Stadshaghen” op loopafstand van het centrum van Ommen en opstapplaats voor openbaar vervoer.
Faciliteiten Residentie ‘De Stadshaghen’:
Service op maat: Naast de collectieve voorzieningen kunt u op op individuele basis en kosten gebruikmaken van een aantal diensten. Zo is er 1 x per week een kapper aanwezig. U heeft de mogelijkheid een logeerkamer voor uw bezoek te huren dan wel voor familiegelegenheden de recreatiezaal te reserveren. Dan is er nog de mogelijkheid uw was en strijkgoed te laten verzorgen door onze huishoudelijk medewerkers of huishoudelijke hulp in te huren.
Een aantal van onze medewerkers over een BHV-opleiding en is er een AED-apparaat (Automatische Externe Defibrillator) in het gebouw aanwezig.
Huismeester: Voor storingen, kleine reparaties of assistentie is de huismeester op verzoek beschikbaar.
Maaltijdvoorziening: Maaltijden kunnen door uzelf wekelijks bij een externe cateraar besteld worden in zowel gekoelde als diepvries varianten. Voor nadere informatie kunt u contact opnemen met de receptie.
Activiteiten: Sjoelen, koffie-ochtend, stamtafel, biljarten, koersbal en creaclub. Op jaarlijkse basis wordt er ook nog een barbecue, stampotbuffet, gezamenlijk kerstdiner en thema avond georganiseerd.
Maandelijke kosten (2026):
– VvE bijdrage: € 237,28
– Collectieve voorziening: € 164,97
– Individuele wooneenheden: € 23,32
– Voorschot verwarming app: € 67,70
– Voorschot verwarming gemeenschappelijke gedeelten: € 8,91
Totale maandelijke kosten: € 502,17
Wil u dit appartement bezichtigen? Maak dan snel een afspraak. Onze makelaar Johan Maasse vertelt u met plezier meer over dit appartement.
Volledige omschrijving weergeven
Kenmerken
€ 399.000,- k.k.


