Falkenburgerf 10
Omschrijving
Gelegen aan de rand van de geliefde woonwijk ‘de Wolfskuil’ staat deze onder architectuur gebouwde royale rietgedekte VILLA met carport en inpandige garage!
Het geheel is gelegen aan een rustig woonerf op een perceel van maar liefst 1.070 m².
In totaal heeft deze woning 321 m² aan woonoppervlakte met o.a. vijf slaapkamers, diverse multifunctionele ruimtes, een inpandige garage en een luxe wellnessruimte. De slaap- en badkamer op de begane grond bieden mogelijkheden voor gelijkvloers wonen, terwijl de verdieping ook ruimte geeft aan een groot (samengesteld) gezin of zelfs een B&B aan huis! De mogelijkheden op deze prachtige plek zijn divers – het is aan u om ze te ontdekken!
De woning is gasloos, uiterst energiezuinig (energielabel A+++) en beschikt over hoogwaardige installaties waaronder 28 zonnepanelen, 2 warmtepompen, airconditioning, een zonneboiler met 48 heatpipes, heteluchtverwarming met topkoeling, een WTW-systeem en een thuisaccu. Hier is niet alleen gedacht aan stijl en comfort, maar ook aan energiezuinig en toekomstbestendig wonen.
Locatie: Een unieke bosrijke ligging, in een fraaie gemoedelijke woonwijk met volop privacy! Vanuit de achtertuin wandelt u zó het bos in, en op slechts 10 minuten lopen vind je het NS-station, vanaf hier brengt de trein je in 20 minuten in Zwolle. Ook het centrum van Ommen is dichtbij, lopend ben je hier in 20 minuten, pak je de fiets dan ben je er met 10 minuten. Voor de natuurliefhebbers woon je hier heerlijk! In de directe omgeving zijn meerdere wandel- en fietsroutes te vinden. Vrij wonen met de voorzieningen binnen handbereik, het beste van twee werelden.
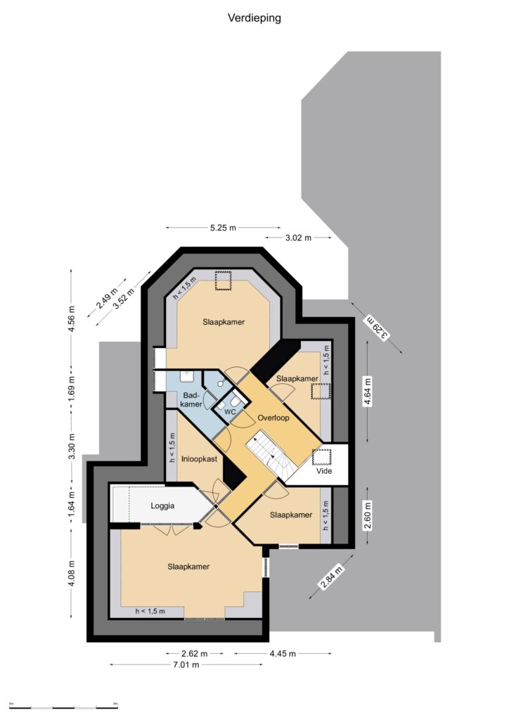
Indeling
Begane grond: Via de elektrische toegangspoort en ruime oprit bereikt u de woning. De royale overdekte entree geeft toegang tot de centrale hal met trapopgang naar de verdieping, meterkast en toilet met fonteintje en urinoir. Vanuit de hal is zowel de woon-/ eetkamer als de inpandige garage bereikbaar. De sfeervolle woonkamer heeft een natuurstenen schouw en voelt heerlijk ruim en licht door de vele raampartijen. Vanuit de woonkamer is de tussenhal (met toegang tot het kantoor en de tuin), de dichte keuken en de royale serre bereikbaar. De serre geeft fraai uitzicht over de tuin en is voorzien van inbouwspots, schuifwanden en een loopdeur.
De dichte keuken biedt ruimte voor een eettafel en is voorzien van een hoekopstelling keuken met een natuurstenen aanrechtblad en inbouwapparatuur zoals een combi oven-magnetron, vaatwasser, afzuigschouw, spoelbak en inductie kookplaat. Vanuit de keuken is de serre bereikbaar, de bijkeuken en de slaapkamer met badkamer beneden. Deze masterbedroom heeft twee inbouwkasten, airconditioning en geeft directe toegang tot de royale badkamer welke is uitgerust met een ligbad met whirlpool, dubbel wastafelmeubel, designradiator, inloopdouche en aparte toiletruimte met toilet en urinoir. De bijkeuken met deur naar de oprit is voorzien van witgoedaansluitingen en een kast met schuifwanden waarachter de waterontharder én het centrale radiosysteem zijn geïnstalleerd. Het kantoor beneden is voorzien van airconditioning, inbouwspots, een lichtkoepel voor extra licht inval en een loopdeur naar de wellnessruimte en de garage.
Een extra plus is de riante wellnessruimte met infraroodsauna, jacuzzi en douche-stoomcabine. Deze ruimte heeft een eigen toilet en pantry en is ook uitstekend te gebruiken als praktijkruimte, atelier of salon aan huis. De gehele begane grond is voorzien van vloerverwarming. De inpandige garage is voorzien van een elektrische geïsoleerde garagedeur. Door de twee lichtkoepels is ook hier een prettige lichtinval. Naast ruim plek voor uw auto is hier de CV, de thermische boiler, de thuisaccu en is er een stortbak aanwezig.
1e Verdieping: Royale overloop met vide welke toegang geeft tot vier slaapkamers, een ruime berging (inloopkast), een moderne badkamer en een separaat toilet. De slaapkamer aan de voorzijde is voorzien van een airconditioning en geeft toegang tot de loggia. De badkamer heeft vloerverwarming en is voorzien van een royale inloopdouche en wastafel. De gehele verdieping is voorzien van een PVC vloer.
Zolder: Via een vaste trap bereikt u de zolder. Hier bevindt zich de technische ruimte met o.a. het centrale stofzuigsysteem, WTW-installatie en veel bergruimte.
Buiten: De tuin rondom is fraai aangelegd met grindpaden, terrassen, hortensia’s, fonteinen en fraaie beplanting. Een fijne plek om te ontspannen of om te tuinieren. In de achtertuin is een achteringang met direct toegang naar het bos. Verder is er buiten nog een buitendouche, tuinhuis en zijn er meerdere bergingen met schuifdeuren. De tuin is volledig omheind en voorzien van een elektrische toegangspoort. Op de oprit is er onder de carport ruimte voor 2 auto’s.
Bijzonderheden:
– Onder architectuur gebouwde VILLA!
– Elektrisch toegangspoort met looppoort;
– Woonoppervlakte ca. 321 m², Perceel ca. 1.070 m², Inhoud ca. 1.265 m³;
– Gasloos en energiezuinig, Energielabel A+++;
– Levensloopbestendig, slaap- en badkamer op de begane grond;
– 28 zonnepanelen, 2 warmtepompen, WTW-installatie, Thuisaccu;
– Hetelucht verwarming met topkoeling;
– Airco convectoren (verwarmen en koelen);
– Centraal stofzuigersysteem en radiosysteem;
– Alarminstallatie;
– Wellnessruimte met o.a. jacuzzi, sauna en stoomdouche;
– Ideaal voor grote gezinnen, mantelzorg, inwoning of praktijk aan huis;
– Gelegen aan bosrand, op loopafstand van station en centrum!
De bewoners hebben deze prachtige VILLA in 1999 laten bouwen en nu is het tijd voor een nieuw hoofdstuk:
“We hebben hier 25 jaar met heel veel plezier gewoond en het is moeilijk om afscheid te nemen. We wonen hier fantastisch aan de zuidkant van Ommen aan de Wolfkuil, een bosrijke omgeving. We wandelen zo het bos in. In en om Ommen zijn diverse leuke restaurantjes en terrasjes. Ekkelenkamp heeft bijvoorbeeld een heerlijk terras voor lunch, diner of een ijsje (bekend in heel Nederland). We wonen zeer centraal: 600 meter van het station en 1,5 km vanaf het centrum van Ommen.”
Een huis voor wie ruimte zoekt én rust!
We nodigen u van harte uit voor een bezichtiging.
Volledige omschrijving weergeven
Kenmerken
€ 1.150.000,- k.k.


