Omschrijving
In het hartje van Ommen, in een kleinschalig complex, bevindt zich dit gasloze appartement met twee slaapkamers. De woning heeft een woonoppervlakte 85 m2 en is in 2024 volledig gerenoveerd, geïsoleerd en verduurzaamd. Het pand beschikt over een gezamenlijke entree met intercom en camera, zonnepanelen en een gedeelde berging. Dankzij de centrale ligging zijn winkels, horeca en voorzieningen op loopafstand te bereiken. Kortom, een comfortabel en energiezuinig appartement midden in het levendige centrum van Ommen.
Ommen heeft veel te bieden, waaronder leuke winkels, gezellige restaurantjes, wateractiviteiten op de Vecht en mooie fiets- en wandelroutes.
Daarnaast is de centrale ligging van Ommen perfect, in de directe nabijheid zijn diverse uitvalswegen en een treinstation vind je op 10 minuten fietsen!
Indeling appartement:
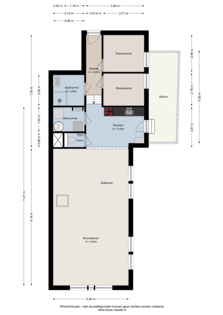
Entree met toegang tot de verschillende vertrekken van het appartement. De lichte woonkamer, met een royale plafondhoogte, vormt het hart van de woning en biedt voldoende ruimte voor een comfortabele zit- en eethoek. De halfopen keuken is modern ingericht en voorzien van diverse inbouwapparatuur, waaronder een koelkast met vriesvakje, combi-magnetron, inductiekookplaat, vaatwasser en afzuigkap. Vanuit de keuken is er directe toegang tot het ruime balkon, waar je heerlijk buiten kunt zitten. Het appartement beschikt over twee slaapkamers, die flexibel inzetbaar zijn als slaap-, werk- of hobbykamer. De badkamer is compact maar efficiënt ingedeeld en voorzien van een douche en wastafelmeubel. Daarnaast is er een aparte wasruimte aanwezig met aansluiting voor de wasmachine en ruimte voor extra opslag.
VVE:
De VvE is nog in oprichting, verkopers helpen daar aan mee. Koper betaald voor het opstarten een bijdrage van € 250,-.
De maandelijkse bijdrage is nog niet bekend.
Bijzonderheden:
– Gelegen in het centrum van Ommen;
– Volledig geïsoleerd en gerenoveerd;
– Voorzien van twee slaapkamers en een balkon;
– Lage maandlasten, energielabel A+;
– 5 zonnepanelen in eigendom;
– Verwarmen/koelen met airco;
– Gedeelde berging voor bijvoorbeeld het veilig binnenzetten van je fiets!;
– Voorzien van een centrale hal met intercom en camerabeveiliging.
Volledige omschrijving weergeven
Kenmerken
€ 450.000,- k.k.


