Omschrijving
Nette 2-onder-1-kapwoning met grote garage op geliefde locatie en loopafstand van het centrum van Ommen. De woning is voorzien van 4 slaapkamers en heeft een woonoppervlakte van 121 m2. De op het noord oosten gelegen achtertuin is voorzien van een vrijstaande stenen garage, houten berging en overkapping!
Een ideale woning voor gezinnen, op loopafstand vind je o.a. een basisschool, speeltuin en supermarkt. Ook is het multifunctionele gebouw ‘De Carroussel’ met zwembad, sporthal, bibliotheek en cultureel centrum op korte afstand gelegen.
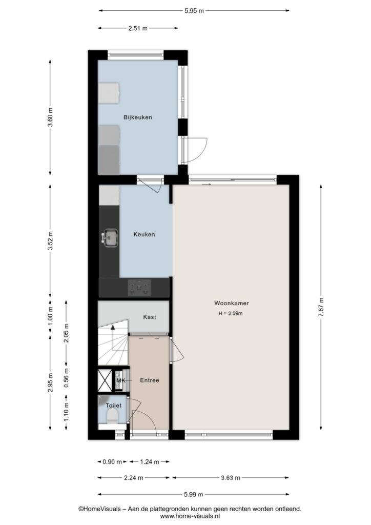
Begane grond: Entree/hal met uitgebreide meterkast, garderobe kast, trapopgang naar de eerste verdieping en toegang tot het toilet en de woonkamer. Lichte woonkamer voorzien van airconditioning, vloerverwarming, doorloop naar het eetgedeelte en de half open keuken. In de eetkamer geeft een schuifpui toegang tot de achtertuin.
De moderne open keuken is van 2019 en voorzien van een koelkast, spoelbak, vaatwasser, oven en Smeg 5 pits gasfornuis. De ruime aangrenzende bijkeuken is voorzien van de wasmachine/droger aansluitingen en deur naar de achtertuin.
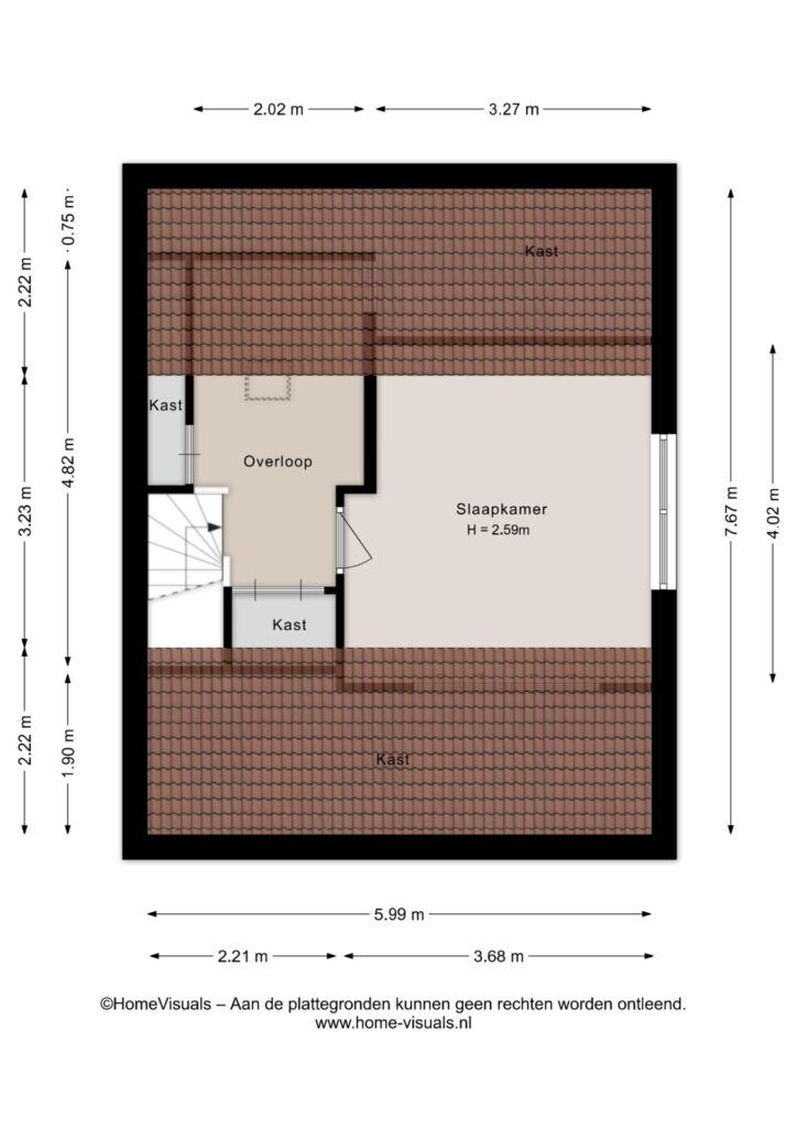
Eerste verdieping: Overloop met toegang tot drie slaapkamers en de badkamer.
De badkamer is voorzien van een inloopdouche, wastafelmeubel met spiegel, toilet, radiator en draaikiepraam. De 3 slaapkamers hebben allen draaikiepramen en de ouderslaapkamer heeft nog een vaste kastenwand.
Tweede verdieping: Via een vaste trap te bereiken 2e verdieping met overloop (voorzien van CV ketel installatie Nefit Topline), berging achter de knieschotten en toegang naar de vierde slaapkamer.
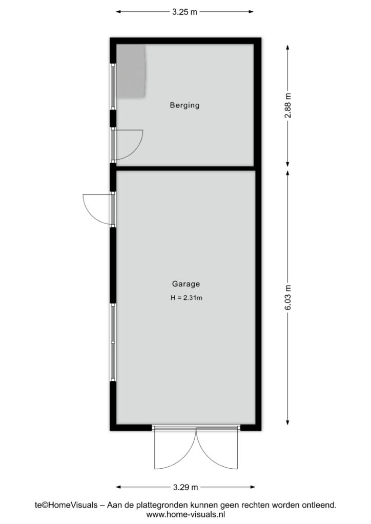
Buiten: Heerlijk beschut gelegen nette achtertuin op het noord oosten. De achtertuin geeft toegang tot de garage, de aangebouwde houten berging en de vrijstaande overkapping. Via een zijpoort kan je naar de voorzijde/oprit van het huis lopen. De garage is voorzien van een betonvloer, elektra en een kantel garagedeur.
Bijzonderheden:
– Gelegen op een kavel van 228 m2;
– Woonoppervlakte van 121 m2 met 4 slaapkamers;
– Ruime oprit met plek voor 3 auto’s;
– Via een zijpoort is de achtertuin te bereiken;
– Volledig voorzien van kunststof ramen en HR++ glas (2019);
– Mooie ligging aan brede en geliefde straat op loopafstand van supermarkt, centrum en andere voorzieningen, een speeltuin bevindt zich achter de woning.
Kortom een ideale woning voor de doorstromer op de woningmarkt voor wie wil wonen in een geliefde straat nabij alle voorzieningen.
Volledige omschrijving weergeven
Kenmerken
€ 425.000,- k.k.


