Omschrijving
Starters opgelet! Wil jij wonen in een stukje historie van Vriezenveen en zoek jij een leuke starterswoning? Dan is deze knusse tweekapper aan de Molenstraat 13 het bezichtigen waard! De woning is gebouwd in 1920, in de loop van de jaren fors uitgebouwd en biedt fijne ruimtes in de vorm van een gezellige woonkamer, stijlvolle keuken en twee prima slaapkamers, met de mogelijkheid voor een derde. De diepe tuin met overkapping en schuur zijn mooie toevoegingen aan dit geheel.
Vanuit de Molenstraat ben je met een kleine 10 minuutjes bij de supermarkt. Ook nabijgelegen plaatsen als Nijverdal, Vroomshoop en natuurlijk Almelo zijn met de auto goed te bereiken.
Indeling
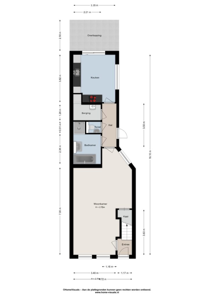
Begane grond: entree/hal aan de voorzijde met trapopgang naar de eerste verdieping en toegang tot de woonkamer. De woonkamer is een gezellige ruimte met aan de voorzijde een eetgedeelte en daarachter het zitgedeelte. De speelse indeling van de woonkamer biedt diverse mogelijke opstellingen voor jouw meubels. De vloer is voorzien van een fraaie houten vloer en de raampartijen voor en achter zorgen er voor aangenaam veel daglicht. Verder is er bij het zitgedeelte een praktische provisiekast onder de trap gesitueerd. Aan het einde van de woonkamer is er toegang tot een hal met het toilet met fonteintje en toegang tot de badkamer en de bijkeuken. Aan het einde van de hal, in de uitbouw, vind je de keuken. De stijlvolle keuken in hoekopstelling is voorzien van een inductiekookplaat, vaatwasser, koelkast en combi-oven. Een schuifpui brengt je op het terras achter de woning. Daarnaast is de gehele uitbouw, inclusief de toiletruimte en de badkamer, voorzien van vloerverwarming. De nette badkamer is voorzien van een ligbad, inloopdouche en een wastafel en de bijkeuken met CV-opstelling
Eerste verdieping: vanaf de overloop op de eerste verdieping is een tweetal slaapkamers gesitueerd. Beide kamers hebben extra ruimte gekregen door de dakkapellen aan de voor- en achterzijde. De grootste kamer is relatief eenvoudig op te delen om zo een extra kamer te realiseren. Verder beschikt de kamer aan de voorzijde over een vaste trap naar de praktische bergzolder. Daarnaast is er ook op de verdieping een airconditioning installatie aanwezig.
Buiten: de voortuin is voorzien van diverse beplanting. Ook is er ruimte voor een buitenbankje, zodat je hier lekker van de zon kunt genieten. De achtertuin is voor het grootste deel bestraat en voorzien van kunstgras. Tegen de woning aan is een grote overkapping geplaatst en geheel achterin de tuin tref je een ruime schuur aan. Verder is het dankzij de grote schuttingdeur mogelijk om de auto naast de woning te parkeren.
Bijzonderheden:
– Woonoppervlakte 96 m2;
– Perceeloppervlakte 206 m2;
– Rondom voorzien van rolluiken;
– Badkamer op de begane grond;
– Uitbouw aan de achterzijde met de woonkeuken;
– Woonkamer is voorzien van airconditioning;
– 7 zonnepanelen;
– Mogelijkheid om auto in de achtertuin te parkeren.
Volledige omschrijving weergeven
Kenmerken
€ 295.000,- k.k.


