Omschrijving
Aan de bekendste straat van Vriezenveen mogen wij deze vrijstaande woning aanbieden. De woning ligt aan een brink aan het Westeinde (nummer 444) en is vanaf de straat bereikbaar via een weg tussen de nummers 436 en 438.
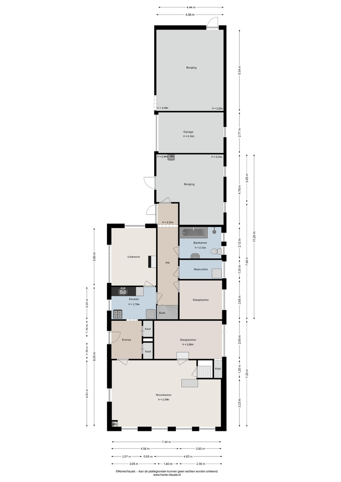
Doordat de woning in het verleden is uitgebouwd, is er op de begane grond veel extra ruimte vrijgekomen. Aan de voorzijde tref je een woonkamer, keuken en een slaapkamer aan. Aan de achterzijde vind je een eetkamer, wasruimte, een tweede slaapkamer, badkamer en berging. Buitenom is een tweede berging en een garage te bereiken. De woning is gedateerd, maar biedt volop mogelijkheden om het geheel naar eigen smaak en inzicht aan te passen.
Vanuit de woning ben je via de Westeinde met 3 minuten fietsen bij de supermarkt en ook andere voorzieningen van het dorp zijn goed te bereiken. Met de auto ben je zo in plaatsen als Wierden, Almelo, Vroomshoop en Nijverdal.
Indeling
Begane grond: entree/hal met vaste kasten aan de zijkant van de woning met toegang tot de woonkamer en de keuken. Ruime woonkamer aan de voorzijde met veel daglichtinval, openhaard en toegang tot de kelder. Via een loopdeur en opstapje toegang tot een slaapkamer. De keuken beschikt over een gedateerd keukenblok met losstaand gasfornuis met gasoven. Vanuit de keuken kom je in de eetkamer en de centrale hal. In de hal is de trapopgang naar de eerste verdieping met daaronder een vaste kast gesitueerd. De hal biedt verder toegang tot een tweede slaapkamer, wasruimte met witgoedaansluitingen en de badkamer. In de badkamer tref je een ligbad, douche, toilet en wastafel aan. Aan het einde van de hal is een deur naar de achtertuin en een deur naar de berging waar de CV-combiketel is geplaatst. Buitenom is een garage en tweede berging te bereiken.
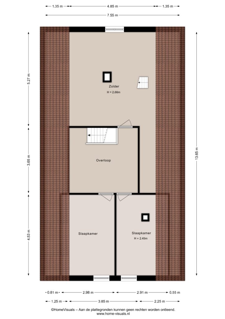
Eerste verdieping: vanaf de ruime overloop zijn twee slaapkamers en een riante zolder te bereiken.
Buiten: aan de voorzijde van de woning ligt een kleine tuin met diverse beplanting. De achtertuin is voor het grootste gedeelte bestraat met achterin een strook gras.
Bijzonderheden:
– Woonoppervlakte 142 m2;
– Perceeloppervlakte 530 m2;
– Dichtbij de supermarkt;
– Renovatie van de woning wordt geadviseerd, hierdoor wel volop mogelijkheden;
– Funderingsonderzoek fase 1 is aanwezig, vraag hiervoor naar het move account.
Volledige omschrijving weergeven
Kenmerken
€ 339.000,- k.k.

