Omschrijving
Op de hoek van een rustige straat staat deze ruime 2-onder-1-kapwoning met een woonoppervlakte van circa 143 m², gelegen op een perceel van 385 m². De woning is voorzien van 4 slaapkamers met een praktische indeling. In de achtertuin is een vrijstaande stenen garage (in spouw) geplaatst met een ruime aangebouwde carport. Hierdoor is er voldoende mogelijkheid om de auto droog op eigen terrein te parkeren.
Indeling
Begane grond:
Je komt binnen in de entree met garderoberuimte, meterkast en het toilet. Via de entree loop je door naar de eetkamer welke uitzicht geeft tot de achtertuin. Vanuit hier loop je door naar de keuken, die centraal in de woning ligt en praktisch is ingericht. Aansluitend vind je de bijkeuken met extra bergruimte, een vaste kast en de witgoedaansluiting. De woonkamer ligt aan de voorzijde en biedt volop leefruimte en licht. Grote raampartijen zorgen voor een prettige lichtinval.
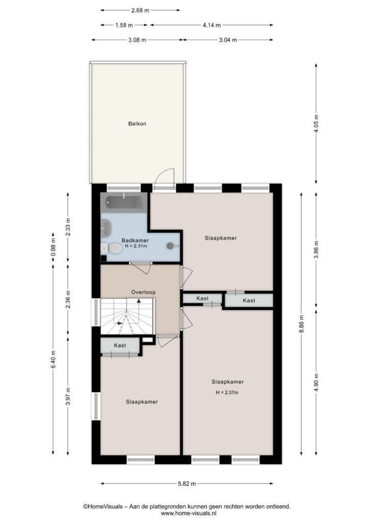
Eerste verdieping:
Via de trap bereik je de overloop op de eerste verdieping. Hier vind je drie slaapkamers, allemaal van goed formaat en praktisch in te delen. De badkamer is voorzien van een ligbad, douche, wastafel en toilet. Vanuit één van de slaapkamers heb je toegang tot het balkon.
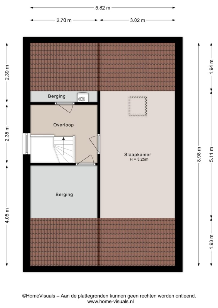
Tweede verdieping:
De vaste trap brengt je naar de tweede verdieping. Hier bevindt zich de vierde slaapkamer, opvallend ruim dankzij de hoge nok. Daarnaast is er extra bergruimte aanwezig, waardoor deze verdieping ook uitstekend geschikt is als werk- of hobbyruimte.
Buitenruimte:
De woning ligt op een royaal hoekperceel, wat zorgt voor extra ruimte en privacy. Op eigen terrein is plaats voor meerdere auto’s, een groot pluspunt. In de achtertuin is een ruime vrijstaande berging met carport te vinden.
Bijzonderheden
– Ruime 2-onder-1-kapwoning;
– Woonoppervlakte ca. 143 m²;
– Perceeloppervlakte 385 m²;
– 4 slaapkamers;
– Hoekligging;
– Ruime garage met carport in de achtertuin;
– Parkeren van meerdere auto’s op eigen terrein;
– Praktische indeling met veel bergruimte.
Volledige omschrijving weergeven
Kenmerken
€ 409.000,- k.k.


