Omschrijving
Levensloopbestendige geschakelde woning met een slaap- en badkamer op de begane grond. De ruime woning van 146 m² beschikt over vier slaapkamers, twee badkamers en een royale bijkeuken. Het geheel is gelegen op een perceel van 492 m² met een zonnige achtertuin op het zuiden.
De woning is volledig geïsoleerd en voorzien van 8 zonnepanelen. Daarnaast is er vloerverwarming aanwezig in de woonkamer en keuken.
Diverse voorzieningen zoals een supermarkt, bushalte, basisschool en sportvereniging bevinden zich op loop- en fietsafstand.
Indeling
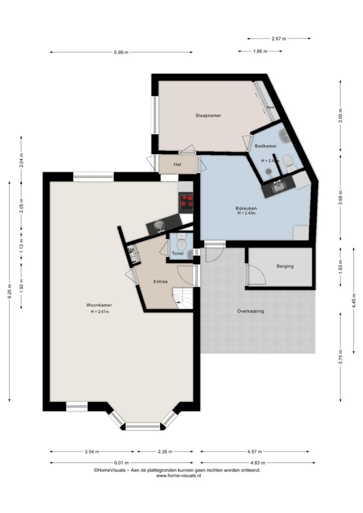
Begane grond:
Via de entree heb je toegang tot het toilet, de meterkast en de trapopgang naar de eerste verdieping. De woonkamer bevindt zich aan de voorzijde van de woning en is dankzij de grote raampartijen in de erker prettig licht. De erker is voorzien van screens aan de buitenzijde.
De keuken is aan de achterzijde gesitueerd en uitgevoerd in een hoekopstelling. Deze is voorzien van diverse inbouwapparatuur, waaronder een koelkast, vaatwasser, inductiekookplaat en een combi oven/magnetron. De woonkamer en keuken zijn beide voorzien van vloerverwarming.
Via een hal aan de achterzijde bereik je de tuin, de bijkeuken en de slaapkamer met en-suite badkamer. De badkamer is ingericht met een douche, wastafelmeubel en toilet. De bijkeuken beschikt over een keukenblok met spoelbak, de cv-installatie en aansluitingen voor wasapparatuur.
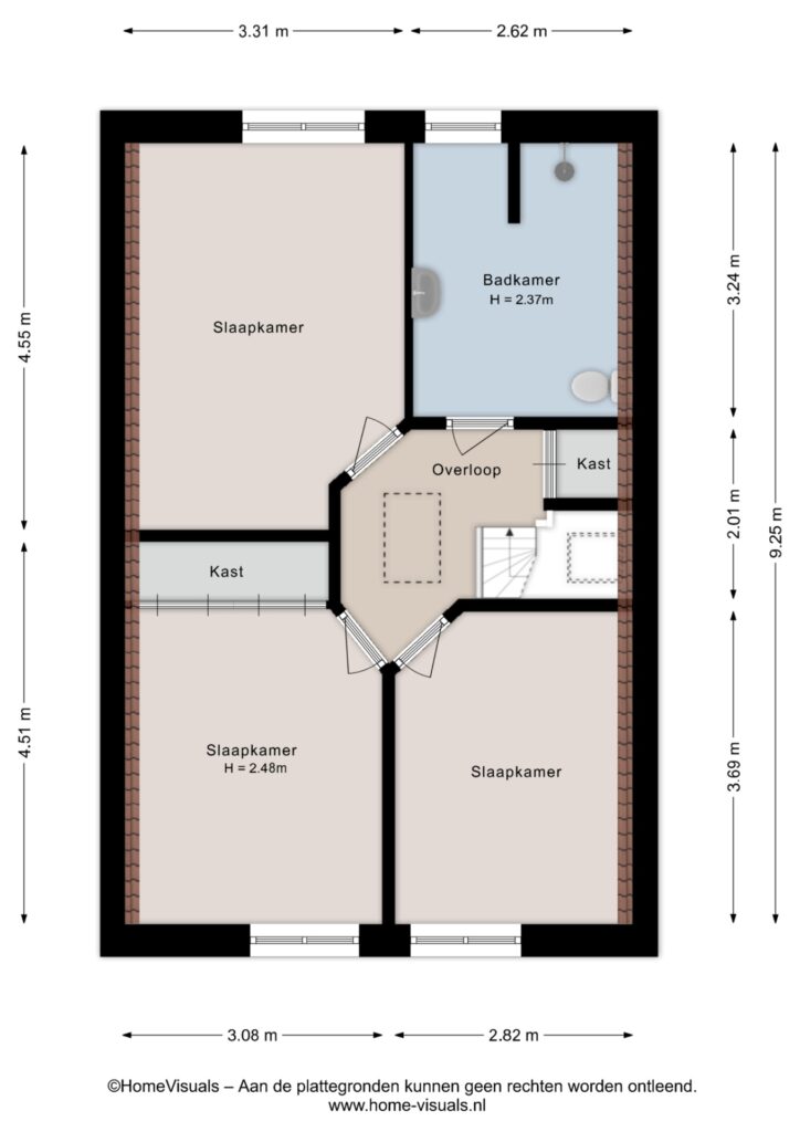
Eerste verdieping:
De overloop geeft toegang tot drie slaapkamers en de tweede badkamer. Eén van de slaapkamers is voorzien van een vaste kastenwand. De badkamer is uitgerust met een douche, wastafel en toilet.
Via een vlizotrap is de vliering bereikbaar, geschikt voor extra bergruimte.
Buiten:
Aan de voorzijde van de woning bevindt zich een ruime oprit met plaats voor twee auto’s en een carport met aangebouwde berging. De achtertuin ligt op het zuiden en beschikt over een houten schuur en een zonnescherm aan de achtergevel.
Bijzonderheden:
– Woonoppervlakte van 146 m² met 4 slaapkamers;
– Slaap- en badkamer op de begane grond;
– De achtertuin is gelegen op het zuiden;
– Vloerverwarming in de woonkamer en keuken;
– De woning is voorzien van 8 zonnepanelen;
– Verschillende voorzieningen zijn op loop- en fietsafstand gelegen.
Volledige omschrijving weergeven
Kenmerken
€ 419.000,- k.k.


