Omschrijving
Heb jij twee rechterhanden en ben je op zoek naar een leuke kluswoning op steenworpafstand van het centrum van Den Ham? Dan is deze vrijstaande woning aan de Voorstraat precies wat je zoekt. In het verleden is de woning iets uitgebouwd, waardoor je nu op de begane grond een woonkamer met open keuken en een slaap- en badkamer op de begane grond tot je beschikking hebt. Op de verdieping zijn nog eens twee slaapkamers te vinden en naast de woning is een praktische garage aangebouwd.
De woning ligt dicht bij de kruising Esweg, Molenstraat en Voorstraat waar je het hele dorp binnen handbereik hebt. Voor een fijne wandeling ben je zo op de Es en via één van de nabijgelegen uitvalswegen ben je zo in omliggende plaatsen zoals Ommen en Vroomshoop.
Indeling
Begane grond: via de oprit met carport toegang tot entree met toilet en fonteintje. Via entree kom je in de centrale hal met trapopgang naar de eerste verdieping. Vanuit de hal is er toegang tot de slaapkamer, badkamer en de woonkamer met open keuken. De woonkamer bevindt zich aan de voorzijde en biedt veel daglicht. In de keuken bevindt zich een gedateerde keukenopstelling met vierpits gasfornuis, koelkast en een oven. De badkamer is netjes en voorzien van een douche en wastafel.
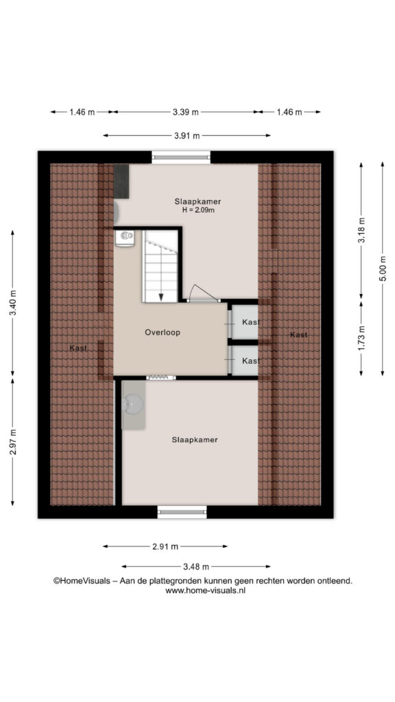
Eerste verdieping: de trap brengt je op de overloop vanwaar een tweetal slaapkamers te bereiken is. Beide kamers beschikken over een eigen wastafel en op de overloop zijn twee vaste kasten en de CV-combiketel gesitueerd.
Buiten: naast de woning tref je een ruime oprit met een aangebouwde carport met garage aan. Aan de andere zijde ligt een strookje groen die door naar achteren loopt. De achtertuin is voorzien van bestrating met daarnaast een groenstrook. Halverwege is een houten schuurtje gesitueerd.
Bijzonderheden:
– Perceeloppervlakte 290 m2;
– Praktische ruimten;
– Volop mogelijkheden;
– Ideale ligging dicht bij het centrum.
Volledige omschrijving weergeven
Kenmerken
€ 239.000,- k.k.


