Omschrijving
Het kleine buurtschap Linde in de gemeente De Wolden werd in het jaar 1290 al vermeld. Nu, in 2026, mogen wij er deze vrijstaande woning aanbieden! Te midden van de landerijen, aan de Vuile Riete, vind je de woning, gelegen op een royaal perceel van maar liefst 980 m2. De woning is oorspronkelijk gebouwd in 1938 en is later iets uitgebouwd.
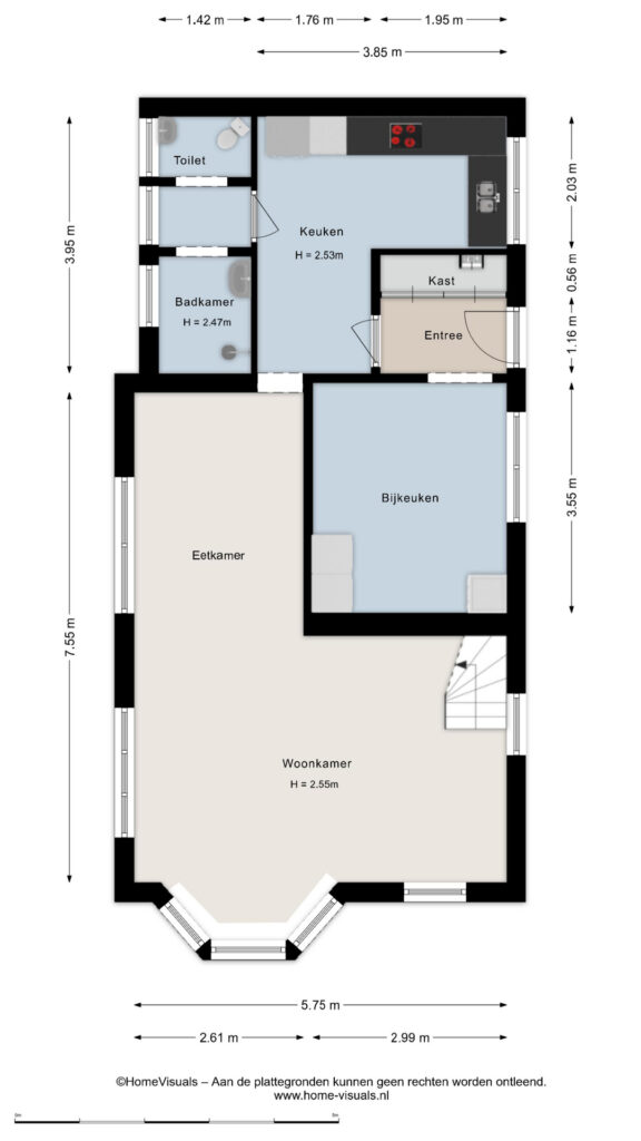
De begane grond bestaat uit een gezellige woonkamer, halfopen keuken, badkamer en bijkeuken. Op de eerste verdieping is een tweetal slaapkamers te vinden. Voor de woning ligt een diepe tuin met veel parkeergelegenheid en doordat de woning redelijk vooraan op het perceel is gelegen, is er achter de woning alle ruimte. Ook tref je hier een praktisch bijgebouw met berging en garage aan.
De woning heeft wat liefde en aandacht nodig. Ook op het gebied van verduurzaming is er veel te winnen. Desondanks zijn er volop mogelijkheden om op deze plek jouw droomwoning te creëeren!
Indeling
Begane grond: binnenkomst in entree aan zijkant van de woning met kastenwand met meterkast. Vanuit deze hal is er toegang tot de bijkeuken en de keuken. Via de keuken kom je in de woonkamer, welke zich aan de voorzijde van de woning bevindt.
De L-vormige woonkamer is een gezellige ruimte waar de erker voor veel extra daglicht zorgt. Bovendien bieden de raampartijen een fraai uitzicht over de landerijen tegenover de woning. In de woonkamer bevindt zich de trap naar de eerste verdieping. Terug in de keuken tref je een gedateerde maar functionele keukenopstelling met inductiekookplaat en inbouwkoelkast aan. Vanuit de keuken is tevens de badkamer te bereiken, waar je de beschikking hebt over een wastafel en een douche. Via een open doorgang is een toilet met fonteintje te bereiken. Verder vind je in de royale bijkeuken de witgoedaansluitingen.
Eerste verdieping: de vaste trap brengt je op de eerste verdieping welke is opgedeeld in tweeën. Beide ruimtes zijn goed te gebruiken als slaapvertrek. De grootste ruimte beschikt tevens over praktische bergruimte waar tevens de CV-combiketel is gesitueerd.
Buiten: aan de voorzijde van de woning ligt een groot gazon welke doorloopt tot langs de woning. Aan de andere zijde naast de woning tref je een lange oprit die naar achteren leidt. Deze oprit biedt volop parkeerruimte voor meerdere auto’s. Direct achter de woning ligt bestrating een er is een praktisch bijgebouw gesitueerd welke is opgedeeld in een garage en berging. Daarachter ligt een royaal gazon vanwaar je uitkijkt op de landerijen achter de woning.
Bijzonderheden:
– Perceeloppervlakte 980 m2;
– Woonoppervlakte: 105 m2;
– Landelijke ligging;
– Renovatie van de woning wordt geadviseerd, hierdoor wel volop mogelijkheden.
Volledige omschrijving weergeven
Kenmerken
€ 475.000,- k.k.


